Winkelruimte Middenweg 34-H Amsterdam

Middenweg 34-H , 1097BP Amsterdam

Ontvang updates voor Don Bosco

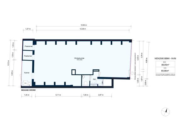
Dit bedrijfspand op het adres Middenweg 34-H te Amsterdam is geschikt als winkelruimte. Het betreft hier bestaande bouw met energielabel A. Deze winkelruimte heeft een oppervlakte van 154 m² en bestaat uit 1 bouwlaag.

Bekijk alle bedrijfspanden in Don Bosco

Status bedrijfsobject Winkelruimte Middenweg 34-H Amsterdam

Huidige status
Beschikbaar
Aangeboden sinds
12-02-2026
Aanvaarding
In overleg

Eigendom en huurprijs winkelruimte

Laatst bekende huurprijs
€ 2.750 per maand

Omgeving Winkelruimte Middenweg 34-H Amsterdam

Ligging
Winkelcentrum
Bereikbaarheid
Bushalte op 500 m tot 1000 m, metrohalte op 1000 m
Bijdrage winkeliersvereniging
Nee
Welstandsklasse
A2

Indeling en inrichting bedrijfspand

Oppervlakte
154 m²
Oppervlakte verkoopvloer
81 m²
Breedte gevel
4,9 m

Voorzieningen in de buurt

Boodschappen0,2 km
Cafetaria0,3 km
Kinderdagverblijf0,2 km
Treinstation1,0 km
Alle voorzieningen in Don Bosco

Binnenkijken bij Middenweg 34-H te Amsterdam

Meer meldingen in deze omgeving

112 melding
Dinsdag 10-2-2026 om 19:22
Nobelweg, Amsterdam

Binnenkijken bij
Dinsdag 10-2-2026
Kamerlingh Onneslaan 50, 1097DH Amsterdam

112 melding
Maandag 9-2-2026 om 07:17
Graham Bellstraat, 1097DD Amsterdam

Binnenkijken bij
Maandag 9-2-2026
Willem Beukelsstraat 281, 1097CT Amsterdam

112 melding
Zaterdag 7-2-2026 om 19:18
Ringdijk, Amsterdam

Nieuw bedrijf
Februari 2026
Ringdijk 58, 1097AH Amsterdam

Nieuw bedrijf
Februari 2026
Ringdijk 42, 1097AE Amsterdam

112 melding
Dinsdag 3-2-2026 om 08:38
Zacharias Jansestraat, Amsterdam

Direct een e-mail ontvangen bij nieuwe meldingen in deze regio?

Meld je dan GRATIS aan voor de Oozo Alert service voor Don Bosco

Instellen

Meer nieuws in Don Bosco

Weten hoe eenvoudig het is om af te vallen? Zonder pillen en smeersels en zonder je in het zweet te werken!
Kijk op eenvoudig-afvallen.nl

© 2012 - 2026 OOZO.nl - info@oozo.nl - Gegevens verwijderen? | Disclaimer | Privacy statement