Kantoorruimte Tweede Laurierdwarsstraat 42-H Amsterdam

Tweede Laurierdwarsstraat 42-H , 1016RB Amsterdam

Ontvang updates voor Elandsgrachtbuurt

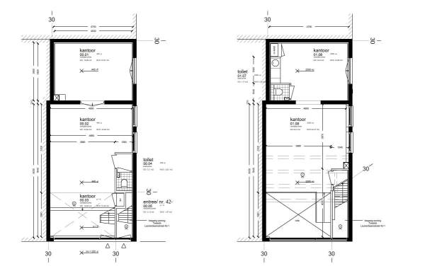
Dit bedrijfspand op het adres Tweede Laurierdwarsstraat 42-H te Amsterdam is geschikt als kantoorruimte. Het betreft hier bestaande bouw uit 1883. Een energielabel is niet beschikbaar. Het pand beschikt over één of meerdere voorzieningen waaronder te openen ramen, toilet, pantry, verwarming en kamerindeling. Deze kantoorruimte heeft een oppervlakte van 93 m² en bestaat uit 2 bouwlagen.

Bekijk alle bedrijfspanden in Elandsgrachtbuurt

Status bedrijfsobject Kantoorruimte Tweede Laurierdwarsstraat 42-H Amsterdam

Huidige status
Beschikbaar
Aangeboden sinds
16-12-2025
Aanvaarding
Per direct beschikbaar

Eigendom en huurprijs kantoorruimte

Laatst bekende huurprijs
Huurprijs op aanvraag
Servicekosten
Geen servicekosten bekend

Omgeving Kantoorruimte Tweede Laurierdwarsstraat 42-H Amsterdam

Ligging
Stadscentrum/dorpskern

Indeling en inrichting bedrijfspand

Oppervlakte
93 m²

Voorzieningen in de buurt

Boodschappen0,1 km
Cafetaria0,1 km
Kinderdagverblijf0,2 km
Treinstation1,8 km
Alle voorzieningen in Elandsgrachtbuurt

Binnenkijken bij Tweede Laurierdwarsstraat 42-H te Amsterdam

Meer meldingen in deze omgeving

112 melding
Zaterdag 21-2-2026 om 16:38
Lauriergracht, Amsterdam

Onroerend goed
Zaterdag 21-2-2026
Hazenstraat 70-H, 1016SR Amsterdam

Binnenkijken bij
Zaterdag 21-2-2026
Laurierstraat 65F, 1016PJ Amsterdam

Onroerend goed
Donderdag 19-2-2026
Looiersgracht 32-H, 1016VS Amsterdam

Binnenkijken bij
Donderdag 19-2-2026
Laurierstraat 63, 1016PJ Amsterdam

Binnenkijken bij
Donderdag 19-2-2026
Prinsengracht 286D, 1016HJ Amsterdam

Nieuw bedrijf
Februari 2026
Lauriergracht 73O, 1016RH Amsterdam

Nieuw bedrijf
Februari 2026
Lauriergracht 73O, 1016RH Amsterdam

Direct een e-mail ontvangen bij nieuwe meldingen in deze regio?

Meld je dan GRATIS aan voor de Oozo Alert service voor Elandsgrachtbuurt

Instellen

Meer nieuws in Elandsgrachtbuurt

Weten hoe eenvoudig het is om af te vallen? Zonder pillen en smeersels en zonder je in het zweet te werken!
Kijk op eenvoudig-afvallen.nl

© 2012 - 2026 OOZO.nl - info@oozo.nl - Gegevens verwijderen? | Disclaimer | Privacy statement