Kantoorruimte Eerste Passeerdersdwarsstraat 74 Amsterdam

Eerste Passeerdersdwarsstraat 74, 1016XD Amsterdam

Ontvang updates voor Passeerdersgrachtbuurt

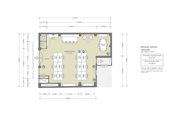
Dit bedrijfspand op het adres Eerste Passeerdersdwarsstraat 74 te Amsterdam is geschikt als kantoorruimte. Het betreft hier bestaande bouw uit 1900 met energielabel A+. Het pand beschikt over één of meerdere voorzieningen waaronder airconditioning, inbouwarmaturen, te openen ramen, toilet, pantry en verwarming. Deze kantoorruimte heeft een oppervlakte van 94 m² en bestaat uit 1 bouwlaag.

Bekijk alle bedrijfspanden in Passeerdersgrachtbuurt

Status bedrijfsobject Kantoorruimte Eerste Passeerdersdwarsstraat 74 Amsterdam

Huidige status
Beschikbaar
Aangeboden sinds
26 september 2025
Aanvaarding
In overleg

Eigendom en huurprijs kantoorruimte

Laatst bekende huurprijs
€ 428 per vierkante meter per jaar
Servicekosten
Geen servicekosten bekend

Omgeving Kantoorruimte Eerste Passeerdersdwarsstraat 74 Amsterdam

Ligging
Stadscentrum/dorpskern, in woonwijk, stationslocat

Indeling en inrichting bedrijfspand

Oppervlakte
94 m²

Voorzieningen in de buurt

Boodschappen0,2 km
Cafetaria0,3 km
Kinderdagverblijf0,3 km
Treinstation2,1 km
Alle voorzieningen in Passeerdersgrachtbuurt

Binnenkijken bij Eerste Passeerdersdwarsstraat 74 te Amsterdam

Meer meldingen in deze omgeving

Nieuw bedrijf
Januari 2026
Eerste Passeerdersdwarsstraat 102, 1016XD Amsterdam

Nieuw bedrijf
December 2025
Looiersgracht 31B, 1016VR Amsterdam

Nieuw bedrijf
December 2025
Eerste Passeerdersdwarsstraat 1241, 1016XD Amsterdam

Nieuw bedrijf
December 2025
Eerste Passeerdersdwarsstraat 1241, 1016XD Amsterdam

Nieuw bedrijf
December 2025
Eerste Passeerdersdwarsstraat 1241, 1016XD Amsterdam

Nieuw bedrijf
December 2025
Eerste Passeerdersdwarsstraat 124H, 1016XD Amsterdam

112 melding
Zondag 7-12-2025 om 16:36
Passeerdersstraat, Amsterdam

Nieuw bedrijf
November 2025
Raamstraat 113, 1016XL Amsterdam

Direct een e-mail ontvangen bij nieuwe meldingen in deze regio?

Meld je dan GRATIS aan voor de Oozo Alert service voor Passeerdersgrachtbuurt

Instellen

Meer nieuws in Passeerdersgrachtbuurt

Weten hoe eenvoudig het is om af te vallen? Zonder pillen en smeersels en zonder je in het zweet te werken!
Kijk op eenvoudig-afvallen.nl

© 2012 - 2026 OOZO.nl - info@oozo.nl - Gegevens verwijderen? | Disclaimer | Privacy statement