Bedrijfsruimte Veemarkt 96- 98 Amsterdam

Veemarkt 96- 98, 1019DE Amsterdam

Ontvang updates voor Bedrijvengebied Veelaan

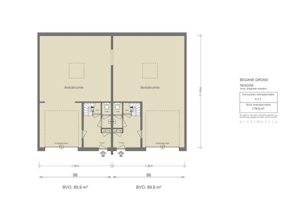
Dit bedrijfspand op het adres Veemarkt 96- 98 te Amsterdam is breed inzetbaar als bedrijfsruimte. Het betreft hier bestaande bouw uit 2000 met energielabel E. Het pand beschikt over één of meerdere voorzieningen waaronder overheaddeuren, betonvloer, toilet en pantry. Deze bedrijfsruimte heeft een oppervlakte van 220 m² en bestaat uit 1 bouwlaag.

Bekijk alle bedrijfspanden in Bedrijvengebied Veelaan

Status bedrijfsobject Bedrijfsruimte Veemarkt 96- 98 Amsterdam

Huidige status
Beschikbaar
Aangeboden sinds
14-02-2026
Aanvaarding
In overleg

Eigendom en huurprijs bedrijfsruimte

Laatst bekende huurprijs
€ 43.000 per jaar
Servicekosten
€ 5 per vierkante meter per jaar (21% BTW van toep

Omgeving Bedrijfsruimte Veemarkt 96- 98 Amsterdam

Ligging
Bedrijventerrein

Indeling en inrichting bedrijfspand

Oppervlakte
220 m²
Oppervlakte bedrijfshal
180 m²

Voorzieningen in de buurt

Boodschappen0,2 km
Cafetaria0,8 km
Kinderdagverblijf0,3 km
Treinstation1,4 km
Alle voorzieningen in Bedrijvengebied Veelaan

Binnenkijken bij Veemarkt 96- 98 te Amsterdam

Meer meldingen in deze omgeving

Nieuw bedrijf
Maart 2026
Veemarkt 71, 1019DA Amsterdam

Onroerend goed
Woensdag 18-2-2026
Veemarkt 77- 79, 1019DA Amsterdam

Onroerend goed
Woensdag 18-2-2026
Veemarkt 67- 69, 1019DA Amsterdam

Onroerend goed
Donderdag 12-2-2026
Veemarkt 207- 215, 1019CJ Amsterdam

Faillissement
Vrijdag 9-1-2026
Veemarkt 150A, 1019DE Amsterdam

112 melding
Donderdag 8-1-2026 om 11:37
Veemarkt, Amsterdam

Nieuw bedrijf
Januari 2026
Veemarkt 180, 1019DG Amsterdam

Nieuw bedrijf
Januari 2026
Veemarkt 180, 1019DG Amsterdam

Direct een e-mail ontvangen bij nieuwe meldingen in deze regio?

Meld je dan GRATIS aan voor de Oozo Alert service voor Bedrijvengebied Veelaan

Instellen

Meer nieuws in Bedrijvengebied Veelaan

Weten hoe eenvoudig het is om af te vallen? Zonder pillen en smeersels en zonder je in het zweet te werken!
Kijk op eenvoudig-afvallen.nl

© 2012 - 2026 OOZO.nl - info@oozo.nl - Gegevens verwijderen? | Disclaimer | Privacy statement