Bedrijfsruimte Schakelstraat 29 Amsterdam

Schakelstraat 29, 1014AW Amsterdam

Ontvang updates voor Bedrijventerrein Sloterdijk I

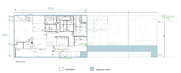
Dit bedrijfspand op het adres Schakelstraat 29 te Amsterdam is breed inzetbaar als bedrijfsruimte. Het betreft hier bestaande bouw uit 2002. Het pand beschikt over één of meerdere voorzieningen waaronder airconditioning, lichtstraten, overheaddeuren, betonvloer, toilet en pantry. Deze bedrijfsruimte heeft een oppervlakte van 920 m².

Bekijk alle bedrijfspanden in Bedrijventerrein Sloterdijk I

Status bedrijfsobject Bedrijfsruimte Schakelstraat 29 Amsterdam

Huidige status
Beschikbaar
Aangeboden sinds
9 december 2025
Aanvaarding
In overleg

Eigendom en huurprijs bedrijfsruimte

Laatst bekende huurprijs
€ 140 per vierkante meter per jaar

Omgeving Bedrijfsruimte Schakelstraat 29 Amsterdam

Ligging
Bedrijventerrein
Bereikbaarheid
Bushalte op minder dan 500 m, NS Intercitystation

Indeling en inrichting bedrijfspand

Mogelijke functies
Kantoorruimte
Oppervlakte
920 m²
Oppervlakte bedrijfshal
920 m²
Perceel oppervlakte
1.963 m²
Parkeergelegenheid
12 niet-overdekte parkeerplaatsen

Voorzieningen in de buurt

Boodschappen0,6 km
Cafetaria0,4 km
Kinderdagverblijf1,7 km
Treinstation1,6 km
Alle voorzieningen in Bedrijventerrein Sloterdijk I

Binnenkijken bij Schakelstraat 29 te Amsterdam

Meer meldingen in deze omgeving

Onroerend goed
Vrijdag 24-4-2026
Isolatorweg 34-A, 1014AS Amsterdam

Nieuw bedrijf
April 2026
Kabelweg 57, 1014BA Amsterdam

Nieuw bedrijf
April 2026
Kabelweg 57, 1014BA Amsterdam

112 melding
Donderdag 23-4-2026 om 21:27
Transformatorweg, Amsterdam

112 melding
Donderdag 23-4-2026 om 21:01
Transformatorweg, Amsterdam

112 melding
Donderdag 23-4-2026 om 20:49
Transformatorweg, Amsterdam

112 melding
Donderdag 23-4-2026 om 03:21
Transformatorweg, Amsterdam

Faillissement
Woensdag 22-4-2026
Isolatorweg 32, 1014AS Amsterdam

Direct een e-mail ontvangen bij nieuwe meldingen in deze regio?

Meld je dan GRATIS aan voor de Oozo Alert service voor Bedrijventerrein Sloterdijk I

Instellen

Meer nieuws in Bedrijventerrein Sloterdijk I

Weten hoe eenvoudig het is om af te vallen? Zonder pillen en smeersels en zonder je in het zweet te werken!
Kijk op eenvoudig-afvallen.nl

© 2012 - 2026 OOZO.nl - info@oozo.nl - Gegevens verwijderen? | Disclaimer | Privacy statement