Kantoorruimte Stadhouderskade 5 Amsterdam

Stadhouderskade 5, 1054ES Amsterdam

Ontvang updates voor Vondelparkbuurt Oost

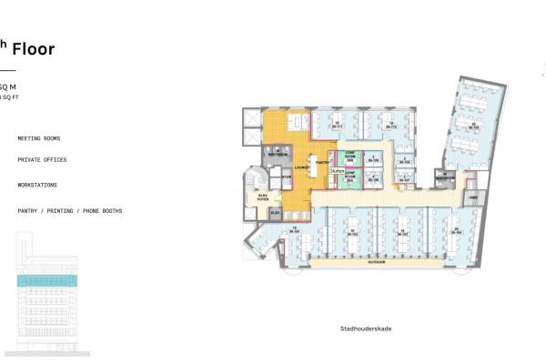
Dit bedrijfspand op het adres Stadhouderskade 5 te Amsterdam is geschikt als kantoorruimte. Het betreft hier bestaande bouw uit 1930. Een energielabel is niet beschikbaar. Het pand beschikt over één of meerdere voorzieningen waaronder airconditioning, inbouwarmaturen, liften, te openen ramen, kabelgoten, systeemplafond, toilet, pantry, verwarming en kamerindeling. Deze kantoorruimte heeft een oppervlakte van 6.542 m² (in units vanaf 486 m²) en bestaat uit 12 bouwlagen.

Bekijk alle bedrijfspanden in Vondelparkbuurt Oost

Status bedrijfsobject Kantoorruimte Stadhouderskade 5 Amsterdam

Huidige status
Beschikbaar
Aangeboden sinds
17 april 2024
Aanvaarding
Beschikbaar per 1-1-2025

Eigendom en huurprijs kantoorruimte

Laatst bekende huurprijs
Huurprijs op aanvraag
Servicekosten
Geen servicekosten bekend

Indeling en inrichting bedrijfspand

Oppervlakte
6.542 m² (in units vanaf 486 m²)
Perceel oppervlakte
954 m²

Voorzieningen in de buurt

Boodschappen0,2 km
Cafetaria0,1 km
Kinderdagverblijf0,2 km
Treinstation2,8 km
Alle voorzieningen in Vondelparkbuurt Oost

Binnenkijken bij Stadhouderskade 5 te Amsterdam

Meer meldingen in deze omgeving

Binnenkijken bij
Donderdag 12-3-2026
Stadhouderskade 22G, 1054ES Amsterdam

Binnenkijken bij
Maandag 9-3-2026
Vondelstraat 683, 1054GG Amsterdam

Onroerend goed
Zaterdag 7-3-2026
Vondelstraat 11-E, 1054GC Amsterdam

Onroerend goed
Zaterdag 7-3-2026
Roemer Visscherstraat 41-A, 1054EW Amsterdam

Binnenkijken bij
Vrijdag 27-2-2026
Stadhouderskade 21D, 1054ES Amsterdam

Nieuw bedrijf
Februari 2026
Stadhouderskade 52, 1054ES Amsterdam

Nieuw bedrijf
Februari 2026
Vondelstraat 42F, 1054GE Amsterdam

Faillissement
Maandag 23-2-2026
Vondelstraat 15, 1054GH Amsterdam

Direct een e-mail ontvangen bij nieuwe meldingen in deze regio?

Meld je dan GRATIS aan voor de Oozo Alert service voor Vondelparkbuurt Oost

Instellen

Meer nieuws in Vondelparkbuurt Oost

Weten hoe eenvoudig het is om af te vallen? Zonder pillen en smeersels en zonder je in het zweet te werken!
Kijk op eenvoudig-afvallen.nl

© 2012 - 2026 OOZO.nl - info@oozo.nl - Gegevens verwijderen? | Disclaimer | Privacy statement