Winkelruimte Nieuwstraat 8- 10 Breda

Nieuwstraat 8- 10, 4811WV Breda

Ontvang updates voor City

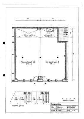
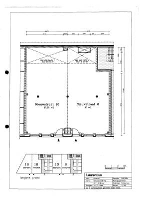
Dit bedrijfspand op het adres Nieuwstraat 8- 10 te Breda is geschikt als winkelruimte. Het betreft hier bestaande bouw uit 1997 met energielabel A+. Deze winkelruimte heeft een oppervlakte van 167 m² en bestaat uit 1 bouwlaag.

Bekijk alle bedrijfspanden in City

Status bedrijfsobject Winkelruimte Nieuwstraat 8- 10 Breda

Huidige status
Beschikbaar
Aangeboden sinds
22 september 2025
Aanvaarding
In overleg

Eigendom en huurprijs winkelruimte

Laatst bekende huurprijs
€ 25.050 per jaar

Omgeving Winkelruimte Nieuwstraat 8- 10 Breda

Ligging
Stadscentrum/dorpskern
Bijdrage winkeliersvereniging
Nee
Welstandsklasse
A2

Indeling en inrichting bedrijfspand

Mogelijke functies
Horeca, kantoorruimte en zorginstelling
Oppervlakte
167 m²
Perceel oppervlakte
180 m²
Oppervlakte verkoopvloer
150 m²
Breedte gevel
12 m

Voorzieningen in de buurt

Boodschappen0,1 km
Cafetaria0,1 km
Kinderdagverblijf0,7 km
Treinstation1,2 km
Alle voorzieningen in City

Binnenkijken bij Nieuwstraat 8- 10 te Breda

Meer meldingen in deze omgeving

Faillissement
Woensdag 14-1-2026
Veemarktstraat 44, 4811ZG Breda

112 melding
Woensdag 14-1-2026 om 14:48
Ridderstraat, Breda

112 melding
Zondag 11-1-2026 om 08:57
Reigerstraat, Breda

Politienieuws
Zondag 11-1-2026
Reigerstraat, Breda

112 melding
Zaterdag 10-1-2026 om 22:00
Houtmarkt, Breda

Binnenkijken bij
Vrijdag 9-1-2026
Markendaalseweg 22B5, 4811KC Breda

Faillissement
Donderdag 8-1-2026
Eindstraat 25, 4811KK Breda

Faillissement
Donderdag 8-1-2026
Nieuwstraat 5, 4811WX Breda

Direct een e-mail ontvangen bij nieuwe meldingen in deze regio?

Meld je dan GRATIS aan voor de Oozo Alert service voor City

Instellen

Meer nieuws in City

Weten hoe eenvoudig het is om af te vallen? Zonder pillen en smeersels en zonder je in het zweet te werken!
Kijk op eenvoudig-afvallen.nl

© 2012 - 2026 OOZO.nl - info@oozo.nl - Gegevens verwijderen? | Disclaimer | Privacy statement