Bedrijfsruimte Zinkweg unit 6 Farmsum

Zinkweg unit 6, 9936BW Farmsum

Ontvang updates voor Farmsum

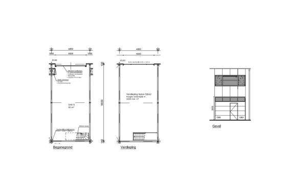
Dit bedrijfspand op het adres Zinkweg unit 6 te Farmsum is breed inzetbaar als bedrijfsruimte. Het betreft hier nieuwbouw . Een energielabel is niet verplicht. De geschatte waarde van dit bedrijfsobject is 125.000 euro. Het pand beschikt over één of meerdere voorzieningen waaronder overheaddeuren, krachtstroom en betonvloer. Deze bedrijfsruimte heeft een oppervlakte van 100 m².

Bekijk alle bedrijfspanden in Farmsum

Status bedrijfsobject Bedrijfsruimte Zinkweg unit 6 Farmsum

Huidige status
Beschikbaar
Aangeboden sinds
12 december 2025
Aanvaarding
In overleg

Eigendom en waarde bedrijfsruimte

Laatst bekende vraagprijs
€ 125.000 vrij op naam

Omgeving Bedrijfsruimte Zinkweg unit 6 Farmsum

Ligging
Bedrijventerrein

Indeling en inrichting bedrijfspand

Oppervlakte
100 m²
Oppervlakte bedrijfshal
100 m²
Draagvermogen
1.000 kg/m²
Vrije hoogte
3 m

Voorzieningen in de buurt

Binnenkijken bij Zinkweg unit 6 te Farmsum

Meer meldingen in deze omgeving

Onroerend goed
Zaterdag 13-12-2025
Zinkweg unit 14, 9936BW Farmsum

Binnenkijken bij
Zaterdag 13-12-2025
Eemskanaal Z.Z. 4, 9936AM Farmsum

Nieuw bedrijf
December 2025
Midscheeps 104, 9934RT Delfzijl

Nieuw bedrijf
December 2025
Midscheeps 104, 9934RT Delfzijl

Nieuw bedrijf
December 2025
Olderman 5, 9936GS Farmsum

112 melding
Donderdag 11-12-2025 om 18:18
Hogelandsterweg, 9934RM Delfzijl

Nieuw bedrijf
December 2025
Eemskanaal N.Z. 23, 9934RD Delfzijl

Nieuw bedrijf
December 2025
Hogelandsterweg 14, 9936BH Farmsum

Direct een e-mail ontvangen bij nieuwe meldingen in deze regio?

Meld je dan GRATIS aan voor de Oozo Alert service voor Farmsum

Instellen

Meer nieuws in Farmsum

Weten hoe eenvoudig het is om af te vallen? Zonder pillen en smeersels en zonder je in het zweet te werken!
Kijk op eenvoudig-afvallen.nl

© 2012 - 2025 OOZO.nl - info@oozo.nl - Gegevens verwijderen? | Disclaimer | Privacy statement