Bedrijfsruimte Elftweg 40- 42 Raamsdonksveer

Elftweg 40- 42, 4941VP Raamsdonksveer

Ontvang updates voor Industrieterrein Dombosch

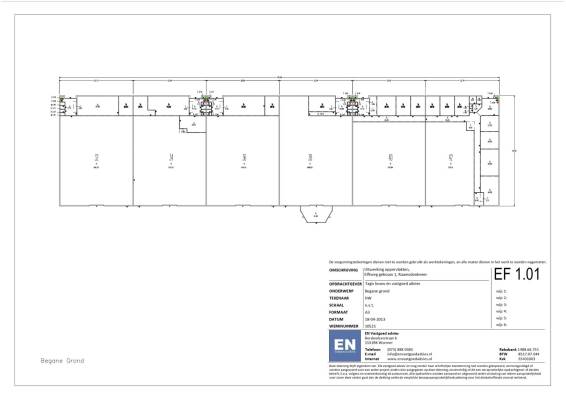
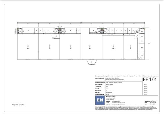
Dit bedrijfspand op het adres Elftweg 40- 42 te Raamsdonksveer is breed inzetbaar als bedrijfsruimte. Het betreft hier bestaande bouw uit 1980. Een energielabel is niet beschikbaar. Het pand beschikt over één of meerdere voorzieningen waaronder lichtstraten, overheaddeuren, krachtstroom, betonvloer, heater, toilet, pantry, inbouwarmaturen en te openen ramen. Deze bedrijfsruimte heeft een oppervlakte van 1.092 m² (in units vanaf 477 m²) en bestaat uit 2 bouwlagen.

Bekijk alle bedrijfspanden in Industrieterrein Dombosch

Status bedrijfsobject Bedrijfsruimte Elftweg 40- 42 Raamsdonksveer

Huidige status
Beschikbaar
Aangeboden sinds
05-03-2026
Aanvaarding
In overleg

Eigendom en huurprijs bedrijfsruimte

Laatst bekende huurprijs
€ 65.000 per jaar
Servicekosten
€ 5 per vierkante meter per jaar (21% BTW van toep

Omgeving Bedrijfsruimte Elftweg 40- 42 Raamsdonksveer

Ligging
Bedrijventerrein en kantorenpark

Indeling en inrichting bedrijfspand

Oppervlakte
1.092 m² (in units vanaf 477 m²)
Oppervlakte bedrijfshal
477 m²
Perceel oppervlakte
2.500 m²
Draagvermogen
1.500 kg/m²
Vrije hoogte
6 m
Vrije overspanning
20 m
Parkeergelegenheid
8 niet-overdekte parkeerplaatsen

Voorzieningen in de buurt

Boodschappen1,7 km
Cafetaria1,1 km
Kinderdagverblijf1,7 km
Treinstation17,5 km
Alle voorzieningen in Industrieterrein Dombosch

Binnenkijken bij Elftweg 40- 42 te Raamsdonksveer

Meer meldingen in deze omgeving

Nieuw bedrijf
Maart 2026
Sterrekroos 9, 4941VZ Raamsdonksveer

Faillissement
Woensdag 18-3-2026
Forellenweg 1b, 4941SJ Raamsdonksveer

Faillissement
Dinsdag 10-3-2026
Weegbree 21, 4941VT Raamsdonksveer

Onroerend goed
Zaterdag 7-3-2026
Snoekweg 22, 4941SC Raamsdonksveer

Faillissement
Vrijdag 6-3-2026
Weegbree 13, 4941VT Raamsdonksveer

Politienieuws
Vrijdag 6-3-2026
Ramgatseweg, Raamsdonksveer

Onroerend goed
Donderdag 5-3-2026
Elftweg 40, 4941VP Raamsdonksveer

112 melding
Zaterdag 28-2-2026 om 13:51
Steurweg, 4941VR Raamsdonksveer

Direct een e-mail ontvangen bij nieuwe meldingen in deze regio?

Meld je dan GRATIS aan voor de Oozo Alert service voor Industrieterrein Dombosch

Instellen

Meer nieuws in Industrieterrein Dombosch

Weten hoe eenvoudig het is om af te vallen? Zonder pillen en smeersels en zonder je in het zweet te werken!
Kijk op eenvoudig-afvallen.nl

© 2012 - 2026 OOZO.nl - info@oozo.nl - Gegevens verwijderen? | Disclaimer | Privacy statement