Bedrijfsruimte de Oude Veiling 106 Zwaag

de Oude Veiling 106, 1689AD Zwaag

Ontvang updates voor Zwaag - Buurt 30 00

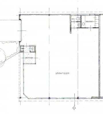
Dit bedrijfspand op het adres de Oude Veiling 106 te Zwaag is breed inzetbaar als bedrijfsruimte. Het betreft hier bestaande bouw uit 1989 met energielabel A+. Het pand beschikt over één of meerdere voorzieningen waaronder betonvloer, toilet en pantry. Deze bedrijfsruimte heeft een oppervlakte van 194 m².

Bekijk alle bedrijfspanden in Zwaag - Buurt 30 00

Status bedrijfsobject Bedrijfsruimte de Oude Veiling 106 Zwaag

Huidige status
Beschikbaar
Aangeboden sinds
1 november 2025
Aanvaarding
In overleg

Eigendom en huurprijs bedrijfsruimte

Laatst bekende huurprijs
€ 1.500 per maand
Servicekosten
€ 10 per maand (21% BTW van toepassing)

Omgeving Bedrijfsruimte de Oude Veiling 106 Zwaag

Ligging
Bedrijventerrein

Indeling en inrichting bedrijfspand

Oppervlakte
194 m²
Oppervlakte bedrijfshal
194 m²
Draagvermogen
1.500 kg/m²
Vrije hoogte
2,5 m

Voorzieningen in de buurt

Boodschappen1,0 km
Cafetaria0,4 km
Kinderdagverblijf0,4 km
Treinstation2,9 km
Alle voorzieningen in Zwaag - Buurt 30 00

Binnenkijken bij de Oude Veiling 106 te Zwaag

Meer meldingen in deze omgeving

112 melding
Dinsdag 11-11-2025 om 11:30
de Oude Veiling, 1689AC Zwaag

112 melding
Maandag 10-11-2025 om 14:14
de Oude Veiling, 1689AA Zwaag

112 melding
Zondag 9-11-2025 om 14:02
de Oude Veiling, 1689AC Zwaag

112 melding
Zondag 9-11-2025 om 14:02
de Oude Veiling, 1689AC Zwaag

112 melding
Dinsdag 4-11-2025 om 11:28
De OuDe Veiling, 1689AA Zwaag

112 melding
Dinsdag 4-11-2025 om 11:28
De OuDe Veiling, 1689AA Zwaag

112 melding
Maandag 3-11-2025 om 13:14
de Oude Veiling, 1689AD Zwaag

112 melding
Maandag 13-10-2025 om 09:12
de Oude Veiling, 1689AA Zwaag

Direct een e-mail ontvangen bij nieuwe meldingen in deze regio?

Meld je dan GRATIS aan voor de Oozo Alert service voor Zwaag - Buurt 30 00

Instellen

Meer nieuws in Zwaag - Buurt 30 00

Weten hoe eenvoudig het is om af te vallen? Zonder pillen en smeersels en zonder je in het zweet te werken!
Kijk op eenvoudig-afvallen.nl

© 2012 - 2025 OOZO.nl - info@oozo.nl - Gegevens verwijderen? | Disclaimer | Privacy statement