Bedrijfsruimte Boelewerf 1-k Ridderkerk

Boelewerf 1-k , 2987VD Ridderkerk

Ontvang updates voor Bolnes

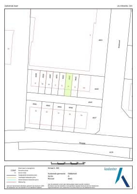
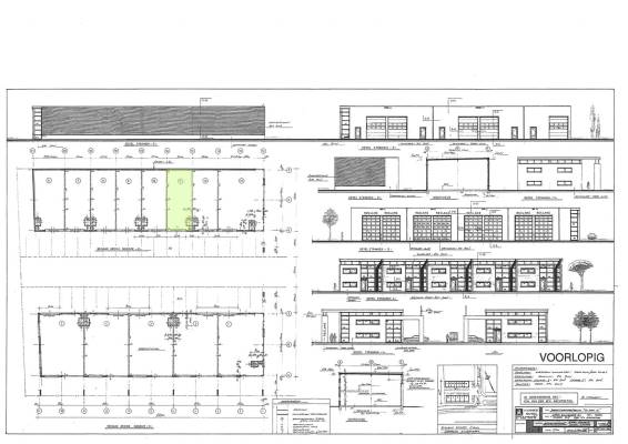
Dit bedrijfspand op het adres Boelewerf 1-k te Ridderkerk is breed inzetbaar als bedrijfsruimte. Het betreft hier bestaande bouw uit 1998. Een energielabel is niet beschikbaar. De geschatte waarde van dit bedrijfsobject is 260.000 euro. Het pand beschikt over één of meerdere voorzieningen waaronder overheaddeuren, betonvloer en toilet. Deze bedrijfsruimte heeft een oppervlakte van 75 m².

Bekijk alle bedrijfspanden in Bolnes

Status bedrijfsobject Bedrijfsruimte Boelewerf 1-k Ridderkerk

Huidige status
Beschikbaar
Aangeboden sinds
19 februari 2026
Aanvaarding
In overleg

Eigendom en waarde bedrijfsruimte

Laatst bekende vraagprijs
€ 260.000 kosten koper

Omgeving Bedrijfsruimte Boelewerf 1-k Ridderkerk

Ligging
Bedrijventerrein

Indeling en inrichting bedrijfspand

Oppervlakte
75 m²
Oppervlakte bedrijfshal
75 m²
Perceel oppervlakte
162 m²
Draagvermogen
800 kg/m²
Vrije hoogte
3,3 m
Parkeergelegenheid
2 niet-overdekte parkeerplaatsen

Voorzieningen in de buurt

Boodschappen0,6 km
Cafetaria0,5 km
Kinderdagverblijf0,6 km
Treinstation4,8 km
Alle voorzieningen in Bolnes

Binnenkijken bij Boelewerf 1-k te Ridderkerk

Meer meldingen in deze omgeving

112 melding
Donderdag 5-3-2026 om 21:39
Vechtstraat, 2987CX Ridderkerk

112 melding
Donderdag 5-3-2026 om 21:39
Vechtstraat, 2987CX Ridderkerk

112 melding
Donderdag 5-3-2026 om 21:34
Vechtstraat, 2987CX Ridderkerk

112 melding
Donderdag 5-3-2026 om 13:54
Rijnsingel, 2987SZ Ridderkerk

112 melding
Donderdag 5-3-2026 om 06:39
Spuistraat, 2987TP Ridderkerk

Nieuw bedrijf
Maart 2026
Schiestraat 28, 2987CV Ridderkerk

Nieuw bedrijf
Maart 2026
Grevelingenhof 8, 2987EB Ridderkerk

Nieuw bedrijf
Maart 2026
Spuistraat 35, 2987TE Ridderkerk

Direct een e-mail ontvangen bij nieuwe meldingen in deze regio?

Meld je dan GRATIS aan voor de Oozo Alert service voor Bolnes

Instellen

Meer nieuws in Bolnes

Weten hoe eenvoudig het is om af te vallen? Zonder pillen en smeersels en zonder je in het zweet te werken!
Kijk op eenvoudig-afvallen.nl

© 2012 - 2026 OOZO.nl - info@oozo.nl - Gegevens verwijderen? | Disclaimer | Privacy statement