Bedrijfsruimte Gessel 11 De Meern

Gessel 11, 3454MZ De Meern

Ontvang updates voor Bedrijvengebied Oudenrijn

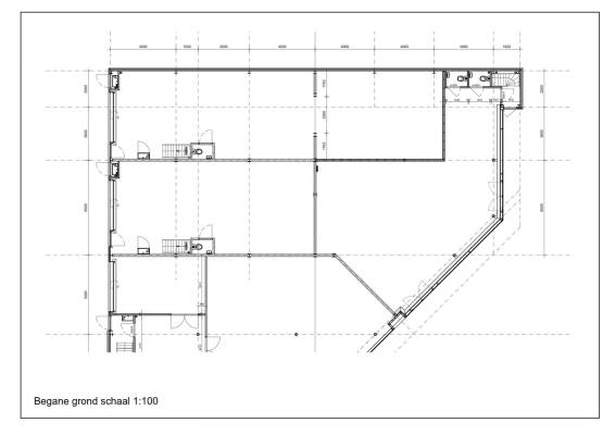
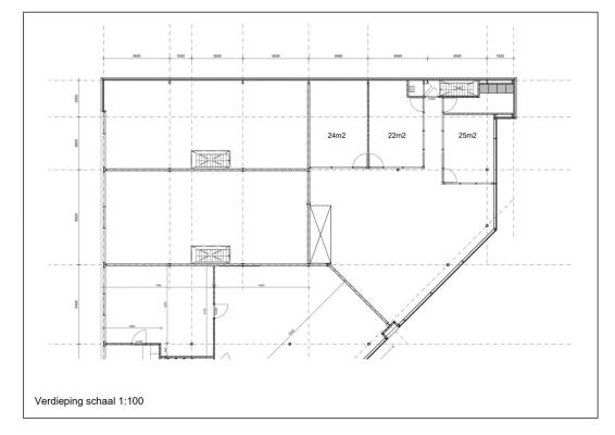
Dit bedrijfspand op het adres Gessel 11 te De Meern is breed inzetbaar als bedrijfsruimte. Het betreft hier bestaande bouw uit 2013. Een energielabel is niet beschikbaar. Het pand beschikt over één of meerdere voorzieningen waaronder overheaddeuren, krachtstroom, betonvloer en toilet. Deze bedrijfsruimte heeft een oppervlakte van 176 m² en bestaat uit 2 bouwlagen.

Bekijk alle bedrijfspanden in Bedrijvengebied Oudenrijn

Status bedrijfsobject Bedrijfsruimte Gessel 11 De Meern

Huidige status
Beschikbaar
Aangeboden sinds
05-02-2026
Aanvaarding
In overleg

Eigendom en huurprijs bedrijfsruimte

Laatst bekende huurprijs
€ 1.400 per maand

Omgeving Bedrijfsruimte Gessel 11 De Meern

Ligging
Bedrijventerrein

Indeling en inrichting bedrijfspand

Oppervlakte
176 m²
Oppervlakte bedrijfshal
88 m²
Draagvermogen
1.500 kg/m²
Vrije hoogte
4,7 m

Voorzieningen in de buurt

Boodschappen1,1 km
Cafetaria0,9 km
Kinderdagverblijf1,0 km
Treinstation3,1 km
Alle voorzieningen in Bedrijvengebied Oudenrijn

Binnenkijken bij Gessel 11 te De Meern

Meer meldingen in deze omgeving

Nieuw bedrijf
Februari 2026
Strijkviertel 54, 3454PN De Meern

Nieuw bedrijf
Februari 2026
Strijkviertel 54, 3454PN De Meern

Nieuw bedrijf
Februari 2026
Veldzigt 18E, 3454PW De Meern

Nieuw bedrijf
Februari 2026
Veldzigt 18E, 3454PW De Meern

Faillissement
Woensdag 4-2-2026
Leidse Rijn 55, 3454PZ De Meern

Faillissement
Dinsdag 3-2-2026
Leidse Rijn 55, 3454PZ De Meern

Faillissement
Maandag 2-2-2026
Molensteijn 33, 3454PT De Meern

Onroerend goed
Vrijdag 30-1-2026
Strijkviertel 46, 3454PN De Meern

Direct een e-mail ontvangen bij nieuwe meldingen in deze regio?

Meld je dan GRATIS aan voor de Oozo Alert service voor Bedrijvengebied Oudenrijn

Instellen

Meer nieuws in Bedrijvengebied Oudenrijn

Weten hoe eenvoudig het is om af te vallen? Zonder pillen en smeersels en zonder je in het zweet te werken!
Kijk op eenvoudig-afvallen.nl

© 2012 - 2026 OOZO.nl - info@oozo.nl - Gegevens verwijderen? | Disclaimer | Privacy statement