Bedrijfsruimte Fokkemast 1- 5 Westzaan

Fokkemast 1- 5, 1551ND Westzaan

Ontvang updates voor Westzanerpolder

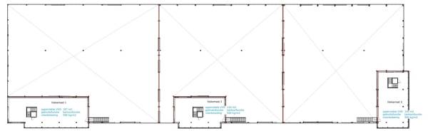
Dit bedrijfspand op het adres Fokkemast 1- 5 te Westzaan is breed inzetbaar als bedrijfsruimte. Het betreft hier nieuwbouw . Een energielabel is niet verplicht. Het pand beschikt over één of meerdere voorzieningen waaronder overheaddeuren, krachtstroom, betonvloer, toilet, pantry en te openen ramen. Deze bedrijfsruimte heeft een oppervlakte van 4.333 m² (in units vanaf 1.326 m²) en bestaat uit 1 bouwlaag.

Bekijk alle bedrijfspanden in Westzanerpolder

Status bedrijfsobject Bedrijfsruimte Fokkemast 1- 5 Westzaan

Huidige status
Beschikbaar
Aangeboden sinds
28 januari 2026
Aanvaarding
In overleg

Eigendom en huurprijs bedrijfsruimte

Laatst bekende huurprijs
Huurprijs op aanvraag

Omgeving Bedrijfsruimte Fokkemast 1- 5 Westzaan

Ligging
Bedrijventerrein

Indeling en inrichting bedrijfspand

Oppervlakte
4.333 m² (in units vanaf 1.326 m²)
Oppervlakte bedrijfshal
3.881 m²
Draagvermogen
3.000 kg/m²
Parkeergelegenheid
48 niet-overdekte parkeerplaatsen

Voorzieningen in de buurt

Boodschappen2,3 km
Cafetaria2,9 km
Kinderdagverblijf1,7 km
Treinstation4,9 km
Alle voorzieningen in Westzanerpolder

Binnenkijken bij Fokkemast 1- 5 te Westzaan

Meer meldingen in deze omgeving

112 melding
Dinsdag 27-1-2026 om 17:58
Smeet, 1551NG Westzaan

112 melding
Vrijdag 23-1-2026 om 16:47
Kleine Steng, 1551NC Westzaan

112 melding
Woensdag 21-1-2026 om 09:01
Smeet, 1551NG Westzaan

112 melding
Zondag 18-1-2026 om 11:56
Smeet, 1551NG Westzaan

112 melding
Dinsdag 13-1-2026 om 13:52
Smeet, 1551NG Westzaan

112 melding
Dinsdag 13-1-2026 om 09:16
Smeet, 1551NG Westzaan

112 melding
Dinsdag 13-1-2026 om 09:13
Smeet, 1551NG Westzaan

112 melding
Maandag 12-1-2026 om 20:15
Smeet, 1551NG Westzaan

Direct een e-mail ontvangen bij nieuwe meldingen in deze regio?

Meld je dan GRATIS aan voor de Oozo Alert service voor Westzanerpolder

Instellen

Meer nieuws in Westzanerpolder

Weten hoe eenvoudig het is om af te vallen? Zonder pillen en smeersels en zonder je in het zweet te werken!
Kijk op eenvoudig-afvallen.nl

© 2012 - 2026 OOZO.nl - info@oozo.nl - Gegevens verwijderen? | Disclaimer | Privacy statement