Bedrijfsruimte Argonstraat 78 Zoetermeer

Argonstraat 78, 2718SN Zoetermeer

Ontvang updates voor Lansinghage c.a.

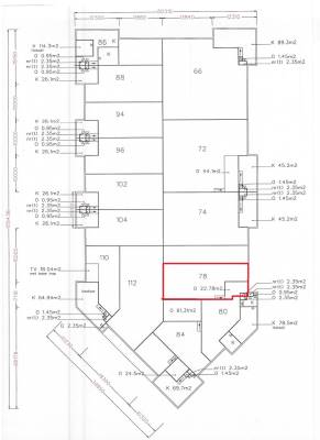
Dit bedrijfspand op het adres Argonstraat 78 te Zoetermeer is breed inzetbaar als bedrijfsruimte. Het betreft hier bestaande bouw uit 1990. Een energielabel is niet beschikbaar. Het pand beschikt over één of meerdere voorzieningen waaronder lichtstraten, overheaddeuren, krachtstroom, betonvloer, heater, toilet, pantry en inbouwarmaturen. Deze bedrijfsruimte heeft een oppervlakte van 252 m² en bestaat uit 1 bouwlaag.

Bekijk alle bedrijfspanden in Lansinghage c.a.

Status bedrijfsobject Bedrijfsruimte Argonstraat 78 Zoetermeer

Huidige status
Beschikbaar
Aangeboden sinds
17-03-2026
Aanvaarding
In overleg

Eigendom en huurprijs bedrijfsruimte

Laatst bekende huurprijs
€ 2.375 per maand
Servicekosten
€ 5 per vierkante meter per jaar (21% BTW van toep

Omgeving Bedrijfsruimte Argonstraat 78 Zoetermeer

Ligging
Bedrijventerrein
Bereikbaarheid
Bushalte op minder dan 500 m en snelwegafrit op 15

Indeling en inrichting bedrijfspand

Oppervlakte
252 m²
Oppervlakte bedrijfshal
212 m²
Draagvermogen
2.500 kg/m²

Voorzieningen in de buurt

Boodschappen0,8 km
Cafetaria0,8 km
Kinderdagverblijf0,5 km
Treinstation1,6 km
Alle voorzieningen in Lansinghage c.a.

Binnenkijken bij Argonstraat 78 te Zoetermeer

Meer meldingen in deze omgeving

112 melding
Zaterdag 14-3-2026 om 14:30
Lansinghageweg, Zoetermeer

112 melding
Zaterdag 14-3-2026 om 11:00
Heliumstraat, Zoetermeer

Nieuw bedrijf
Maart 2026
Argonstraat 8, 2718SM Zoetermeer

Nieuw bedrijf
Maart 2026
Chroomstraat 154, 2718RH Zoetermeer

Nieuw bedrijf
Maart 2026
Chroomstraat 154, 2718RH Zoetermeer

Nieuw bedrijf
Maart 2026
Platinastraat 100, 2718RX Zoetermeer

112 melding
Zaterdag 7-3-2026 om 12:11
Heliumstraat, Zoetermeer

112 melding
Vrijdag 6-3-2026 om 09:04
Signaalrood, Zoetermeer

Direct een e-mail ontvangen bij nieuwe meldingen in deze regio?

Meld je dan GRATIS aan voor de Oozo Alert service voor Lansinghage c.a.

Instellen

Meer nieuws in Lansinghage c.a.

Weten hoe eenvoudig het is om af te vallen? Zonder pillen en smeersels en zonder je in het zweet te werken!
Kijk op eenvoudig-afvallen.nl

© 2012 - 2026 OOZO.nl - info@oozo.nl - Gegevens verwijderen? | Disclaimer | Privacy statement