Bedrijfsruimte Willem Dreeslaan 165 Zoetermeer

Willem Dreeslaan 165, 2729NE Zoetermeer

Ontvang updates voor Oosterheem-Noord-Oost

Dit bedrijfspand op het adres Willem Dreeslaan 165 te Zoetermeer is breed inzetbaar als bedrijfsruimte. Het betreft hier bestaande bouw uit 2010 met energielabel A. Het pand beschikt over één of meerdere voorzieningen waaronder overheaddeuren, betonvloer, heater, toilet, pantry, inbouwarmaturen en te openen ramen. Deze bedrijfsruimte heeft een oppervlakte van 126 m² en bestaat uit 1 bouwlaag.

Bekijk alle bedrijfspanden in Oosterheem-Noord-Oost

Status bedrijfsobject Bedrijfsruimte Willem Dreeslaan 165 Zoetermeer

Huidige status
Beschikbaar
Aangeboden sinds
13 januari 2026
Aanvaarding
In overleg

Eigendom en huurprijs bedrijfsruimte

Laatst bekende huurprijs
€ 1.550 per maand
Servicekosten
€ 120 per maand (21% BTW van toepassing)

Omgeving Bedrijfsruimte Willem Dreeslaan 165 Zoetermeer

Ligging
In woonwijk
Bereikbaarheid
Bushalte op minder dan 500 m, snelwegafrit op 1000

Indeling en inrichting bedrijfspand

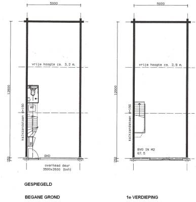
Oppervlakte
126 m²
Oppervlakte bedrijfshal
63 m²
Draagvermogen
1.000 kg/m²
Vrije hoogte
3,2 m
Parkeergelegenheid
2 niet-overdekte parkeerplaatsen

Voorzieningen in de buurt

Boodschappen0,9 km
Cafetaria1,5 km
Kinderdagverblijf0,6 km
Treinstation5,0 km
Alle voorzieningen in Oosterheem-Noord-Oost

Binnenkijken bij Willem Dreeslaan 165 te Zoetermeer

Meer meldingen in deze omgeving

112 melding
Vrijdag 23-1-2026 om 17:58
Meerkerkstraat, 2729CT Zoetermeer

112 melding
Vrijdag 23-1-2026 om 17:57
Meerkerkstraat, 2729CT Zoetermeer

112 melding
Vrijdag 23-1-2026 om 17:32
Roxenissestraat, Zoetermeer

112 melding
Vrijdag 23-1-2026 om 17:16
Westerschelde, Zoetermeer

112 melding
Vrijdag 23-1-2026 om 10:42
Westerschelde, Zoetermeer

112 melding
Vrijdag 23-1-2026 om 08:06
Oosterheemplein, Zoetermeer

112 melding
Donderdag 22-1-2026 om 15:57
Poortugaalstraat, Zoetermeer

112 melding
Donderdag 22-1-2026 om 15:53
Poortugaalstraat, Zoetermeer

Direct een e-mail ontvangen bij nieuwe meldingen in deze regio?

Meld je dan GRATIS aan voor de Oozo Alert service voor Oosterheem-Noord-Oost

Instellen

Meer nieuws in Oosterheem-Noord-Oost

Weten hoe eenvoudig het is om af te vallen? Zonder pillen en smeersels en zonder je in het zweet te werken!
Kijk op eenvoudig-afvallen.nl

© 2012 - 2026 OOZO.nl - info@oozo.nl - Gegevens verwijderen? | Disclaimer | Privacy statement