Woning Bohemenstraat 34 Alkmaar

Bohemenstraat 34, 1827EJ Alkmaar

Ontvang updates voor Daalmeer-Zuidoost

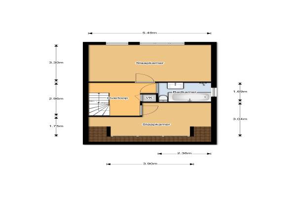
Het adres van deze woning uit 1983 is Bohemenstraat 34 te Alkmaar. Het pand heeft een oppervlakte van 115m² en een perceeloppervlakte van 188m² en heeft 4 kamers kamers waarvan 3 slaapkamers. De geschatte waarde van deze woning is € 239.500.

Bekijk alle woningen in Daalmeer-Zuidoost

Gegevens van Eengezinswoning, hoekwoning

Bouwjaar
1983
Geschatte waarde
€ 239.500
Oppervlakte
115 m2
Inhoud
315 m3
Aantal kamers
4 kamers
Slaapkamers
3
Badkamers
1 apart toilet
Soort bouw
Bestaande bouw
Eigendomssituatie
Volle eigendom
Ligging
Aan water en in woonwijk
Tuin
Achtertuin en voortuin
Achtertuin
55 m² (10m diep en 5,5m breed)

Voorzieningen in de buurt

Boodschappen0,3 km
Grote supermarkt0,4 km
Cafetaria0,4 km
Restaurant1,9 km
Huisarts0,4 km
Ziekenhuis5,3 km
Kinderdagverblijf0,4 km
BSO0,4 km
Alle voorzieningen in Daalmeer-Zuidoost

Binnenkijken bij Bohemenstraat 34 te Alkmaar

Meer meldingen in deze omgeving

112 melding
Zaterdag 15-11-2025 om 01:05
Hannie Schaftstraat, Alkmaar

112 melding
Dinsdag 11-11-2025 om 13:40
Aletta Jacobsstraat, Alkmaar

Binnenkijken bij
Dinsdag 11-11-2025
Johan Huizingastraat 8, 1827NA Alkmaar

112 melding
Zondag 9-11-2025 om 17:23
Suze Groenewegstraat, Alkmaar

112 melding
Vrijdag 7-11-2025 om 11:40
Johanna Naberstraat, Alkmaar

112 melding
Donderdag 6-11-2025 om 12:25
Tirolstraat, Alkmaar

112 melding
Dinsdag 4-11-2025 om 22:33
Belle van Zuylenplein, Alkmaar

Binnenkijken bij
Woensdag 29-10-2025
Moraviëstraat 7, 1827ED Alkmaar

Direct een e-mail ontvangen bij nieuwe meldingen in deze regio?

Meld je dan GRATIS aan voor de Oozo Alert service voor Daalmeer-Zuidoost

Instellen

Meer nieuws in Daalmeer-Zuidoost

Weten hoe eenvoudig het is om af te vallen? Zonder pillen en smeersels en zonder je in het zweet te werken!
Kijk op eenvoudig-afvallen.nl

© 2012 - 2025 OOZO.nl - info@oozo.nl - Gegevens verwijderen? | Disclaimer | Privacy statement