Woning Wolkammerstraat 13 Alkmaar

Wolkammerstraat 13, 1825DK Alkmaar

Ontvang updates voor 't Rak-Zuid

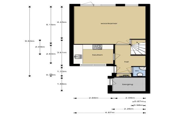
Het adres van deze woning uit 1980 is Wolkammerstraat 13 te Alkmaar. Het pand heeft een oppervlakte van 101m² en een perceeloppervlakte van 121m² en heeft 5 kamers kamers waarvan 4 slaapkamers. De geschatte waarde van deze woning is € 215.000.

Bekijk alle woningen in 't Rak-Zuid

Gegevens van Eengezinswoning, eindwoning

Bouwjaar
1980
Geschatte waarde
€ 215.000
Oppervlakte
101 m2
Inhoud
335 m3
Aantal kamers
5 kamers
Slaapkamers
4
Badkamers
1 badkamer en 1 apart toilet
Soort bouw
Bestaande bouw
Eigendomssituatie
Gemeentelijk eigendom belast met erfpacht
Ligging
In woonwijk
Tuin
Achtertuin en voortuin
Achtertuin
39 m² (8m diep en 4,87m breed)

Voorzieningen in de buurt

Boodschappen0,8 km
Grote supermarkt0,8 km
Cafetaria0,6 km
Restaurant1,1 km
Huisarts0,6 km
Ziekenhuis3,7 km
Kinderdagverblijf0,5 km
BSO0,5 km
Alle voorzieningen in 't Rak-Zuid

Binnenkijken bij Wolkammerstraat 13 te Alkmaar

Meer meldingen in deze omgeving

Nieuw bedrijf
December 2025
Orgelmakerstraat 30, 1825DX Alkmaar

Nieuw bedrijf
December 2025
Postiljonstraat 23, 1825EK Alkmaar

Nieuw bedrijf
December 2025
Rietdekkerstraat 29, 1825BT Alkmaar

Nieuw bedrijf
December 2025
Hovenierstraat 96, 1825AD Alkmaar

Nieuw bedrijf
December 2025
Rietdekkerstraat 41, 1825BT Alkmaar

Nieuw bedrijf
December 2025
Rietdekkerstraat 41, 1825BT Alkmaar

112 melding
Maandag 8-12-2025 om 14:19
Stempelmakerstraat, Alkmaar

112 melding
Zondag 7-12-2025 om 05:22
Koperslagerstraat, Alkmaar

Direct een e-mail ontvangen bij nieuwe meldingen in deze regio?

Meld je dan GRATIS aan voor de Oozo Alert service voor 't Rak-Zuid

Instellen

Meer nieuws in 't Rak-Zuid

Weten hoe eenvoudig het is om af te vallen? Zonder pillen en smeersels en zonder je in het zweet te werken!
Kijk op eenvoudig-afvallen.nl

© 2012 - 2025 OOZO.nl - info@oozo.nl - Gegevens verwijderen? | Disclaimer | Privacy statement