Woning Hebestraat 3 Oudorp

Hebestraat 3, 1829JE Oudorp

Ontvang updates voor Oudorp-Noord en Oudorp-Oost

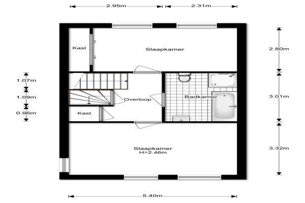
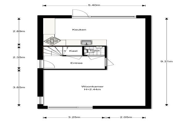
Het adres van deze woning uit 1994 is Hebestraat 3 te Oudorp. Het pand heeft een oppervlakte van 123m² en een perceeloppervlakte van 271m² en heeft 4 kamers kamers waarvan 3 slaapkamers. De geschatte waarde van deze woning is € 375.000.

Bekijk alle woningen in Oudorp-Noord en Oudorp-Oost

Gegevens van Eengezinswoning, 2-onder-1-kapwoning

Bouwjaar
1994
Geschatte waarde
€ 375.000
Oppervlakte
123 m2
Inhoud
413 m3
Aantal kamers
4 kamers
Slaapkamers
3
Badkamers
1 badkamer en 1 apart toilet
Soort bouw
Bestaande bouw
Eigendomssituatie
Volle eigendom
Ligging
Aan water, aan rustige weg, in woonwijk en vrij uitzicht
Tuin
Achtertuin en voortuin
Achtertuin
110 m² (11m diep en 10m breed)

Voorzieningen in de buurt

Boodschappen0,7 km
Grote supermarkt0,7 km
Cafetaria0,8 km
Restaurant0,6 km
Huisarts0,7 km
Ziekenhuis3,7 km
Kinderdagverblijf0,4 km
BSO0,5 km
Alle voorzieningen in Oudorp-Noord en Oudorp-Oost

Binnenkijken bij Hebestraat 3 te Oudorp

Meer meldingen in deze omgeving

Nieuw bedrijf
November 2025
Uranusstraat 3, 1829XD Oudorp

112 melding
Maandag 24-11-2025 om 08:57
Hertog Aalbrechtweg, 1823DL Alkmaar

112 melding
Zondag 23-11-2025 om 22:46
Hertog Aalbrechtweg, 1823DL Alkmaar

112 melding
Zondag 23-11-2025 om 17:04
Hertog Aalbrechtweg, 1823DL Alkmaar

112 melding
Zondag 23-11-2025 om 11:48
Hertog Aalbrechtweg, 1823DL Alkmaar

112 melding
Zondag 23-11-2025 om 11:46
Hertog Aalbrechtweg, 1823DL Alkmaar

112 melding
Zondag 23-11-2025 om 10:36
Hertog Aalbrechtweg, 1823DL Alkmaar

112 melding
Zondag 23-11-2025 om 04:47
Hertog Aalbrechtweg, 1823DL Alkmaar

Direct een e-mail ontvangen bij nieuwe meldingen in deze regio?

Meld je dan GRATIS aan voor de Oozo Alert service voor Oudorp-Noord en Oudorp-Oost

Instellen

Meer nieuws in Oudorp-Noord en Oudorp-Oost

Weten hoe eenvoudig het is om af te vallen? Zonder pillen en smeersels en zonder je in het zweet te werken!
Kijk op eenvoudig-afvallen.nl

© 2012 - 2025 OOZO.nl - info@oozo.nl - Gegevens verwijderen? | Disclaimer | Privacy statement