Woning G.T. Rietveldstraat 94 Almere

G.T. Rietveldstraat 94, 1333LG Almere

Ontvang updates voor Bouwmeesterbuurt

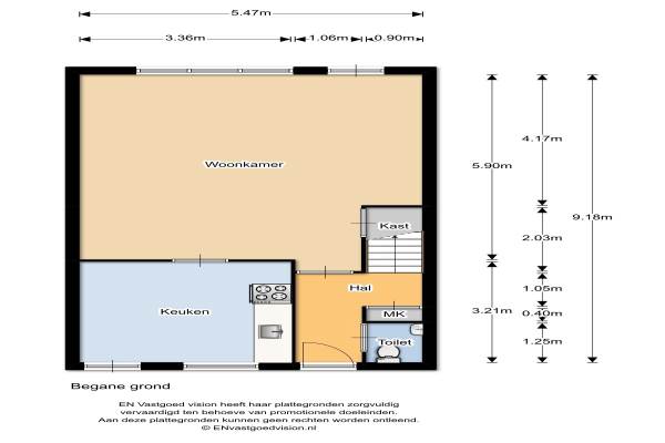
Het adres van deze woning uit 1986 is G.T. Rietveldstraat 94 te Almere. Het pand heeft een oppervlakte van 118m² en een perceeloppervlakte van 201m² en heeft 3 kamers kamers waarvan 2 slaapkamers. De geschatte waarde van deze woning is € 176.400.

Bekijk alle woningen in Bouwmeesterbuurt

Gegevens van Eengezinswoning, hoekwoning

Bouwjaar
1986
Geschatte waarde
€ 176.400
Oppervlakte
118 m2
Inhoud
340 m3
Aantal kamers
3 kamers
Slaapkamers
2
Badkamers
1 badkamer en 1 apart toilet
Soort bouw
Bestaande bouw
Eigendomssituatie
Volle eigendom
Ligging
Aan park, in woonwijk en vrij uitzicht
Tuin
Achtertuin, voortuin en zijtuin
Achtertuin
98 m² (14m diep en 7m breed)

Voorzieningen in de buurt

Boodschappen0,4 km
Grote supermarkt0,4 km
Cafetaria0,4 km
Restaurant0,4 km
Huisarts0,6 km
Ziekenhuis5,0 km
Kinderdagverblijf0,6 km
BSO0,6 km
Alle voorzieningen in Bouwmeesterbuurt

Binnenkijken bij G.T. Rietveldstraat 94 te Almere

Meer meldingen in deze omgeving

Binnenkijken bij
Zaterdag 3-1-2026
M.J. Granpré Molièrestraat 58, 1333KE Almere

Nieuw bedrijf
Januari 2026
C. van Eesterenplein 181, 1333HH Almere

112 melding
Zaterdag 27-12-2025 om 20:44
B. Merkelbachstraat, Almere

Nieuw bedrijf
December 2025
G.T. Rietveldstraat 170F, 1333LJ Almere

Binnenkijken bij
Zaterdag 20-12-2025
B. Merkelbachstraat 3, 1333LA Almere

Nieuw bedrijf
December 2025
Henrick de Keyserplantsoen 23, 1333NR Almere

112 melding
Dinsdag 9-12-2025 om 18:25
M.J. Granpré Molièrestraat, Almere

112 melding
Dinsdag 9-12-2025 om 18:25
M.J. Granpré Molièrestraat, Almere

Direct een e-mail ontvangen bij nieuwe meldingen in deze regio?

Meld je dan GRATIS aan voor de Oozo Alert service voor Bouwmeesterbuurt

Instellen

Meer nieuws in Bouwmeesterbuurt

Weten hoe eenvoudig het is om af te vallen? Zonder pillen en smeersels en zonder je in het zweet te werken!
Kijk op eenvoudig-afvallen.nl

© 2012 - 2026 OOZO.nl - info@oozo.nl - Gegevens verwijderen? | Disclaimer | Privacy statement