Woning P. Ellingstraat 3 Almere

P. Ellingstraat 3, 1333PS Almere

Ontvang updates voor Bouwmeesterbuurt

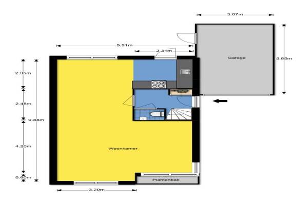
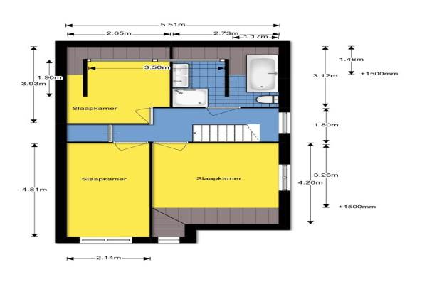
Het adres van deze woning uit 1989 is P. Ellingstraat 3 te Almere. Het pand heeft een oppervlakte van 112m² en een perceeloppervlakte van 324m² en heeft 5 kamers kamers waarvan 4 slaapkamers. De geschatte waarde van deze woning is € 350.000.

Bekijk alle woningen in Bouwmeesterbuurt

Gegevens van Eengezinswoning, 2-onder-1-kapwoning

Bouwjaar
1989
Geschatte waarde
€ 350.000
Oppervlakte
112 m2
Inhoud
420 m3
Aantal kamers
5 kamers
Slaapkamers
4
Badkamers
2 aparte toiletten
Soort bouw
Bestaande bouw
Eigendomssituatie
Volle eigendom
Ligging
Aan rustige weg en beschutte ligging
Tuin
Voortuin, zijtuin en achtertuin
Achtertuin
144 m² (12m diep en 12m breed)

Voorzieningen in de buurt

Boodschappen0,4 km
Grote supermarkt0,4 km
Cafetaria0,4 km
Restaurant0,4 km
Huisarts0,6 km
Ziekenhuis5,0 km
Kinderdagverblijf0,6 km
BSO0,6 km
Alle voorzieningen in Bouwmeesterbuurt

Binnenkijken bij P. Ellingstraat 3 te Almere

Meer meldingen in deze omgeving

112 melding
Zaterdag 27-12-2025 om 20:44
B. Merkelbachstraat, Almere

Nieuw bedrijf
December 2025
G.T. Rietveldstraat 170F, 1333LJ Almere

Binnenkijken bij
Zaterdag 20-12-2025
B. Merkelbachstraat 3, 1333LA Almere

Nieuw bedrijf
December 2025
Henrick de Keyserplantsoen 23, 1333NR Almere

112 melding
Dinsdag 9-12-2025 om 18:25
M.J. Granpré Molièrestraat, Almere

112 melding
Dinsdag 9-12-2025 om 18:25
M.J. Granpré Molièrestraat, Almere

Binnenkijken bij
Zaterdag 6-12-2025
J.B. Bakemaweg 52, 1333LP Almere

Binnenkijken bij
Donderdag 4-12-2025
E.F. van den Banweg 61, 1333JB Almere

Direct een e-mail ontvangen bij nieuwe meldingen in deze regio?

Meld je dan GRATIS aan voor de Oozo Alert service voor Bouwmeesterbuurt

Instellen

Meer nieuws in Bouwmeesterbuurt

Weten hoe eenvoudig het is om af te vallen? Zonder pillen en smeersels en zonder je in het zweet te werken!
Kijk op eenvoudig-afvallen.nl

© 2012 - 2025 OOZO.nl - info@oozo.nl - Gegevens verwijderen? | Disclaimer | Privacy statement