Woning Hollandiastraat 61 Almere

Hollandiastraat 61, 1335VH Almere

Ontvang updates voor Oostvaardersbuurt

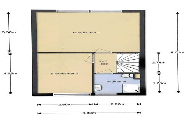
Het adres van deze woning uit 2000 is Hollandiastraat 61 te Almere. Het pand heeft een oppervlakte van 125m² en een perceeloppervlakte van 222m² en heeft 4 kamers kamers waarvan 3 slaapkamers. De geschatte waarde van deze woning is € 225.000.

Bekijk alle woningen in Oostvaardersbuurt

Gegevens van Eengezinswoning, hoekwoning

Bouwjaar
2000
Geschatte waarde
€ 225.000
Oppervlakte
125 m2
Inhoud
335 m3
Aantal kamers
4 kamers
Slaapkamers
3
Badkamers
1 badkamer
Soort bouw
Bestaande bouw
Eigendomssituatie
Volle eigendom
Ligging
Aan rustige weg en in woonwijk
Tuin
Achtertuin, voortuin en zijtuin
Achtertuin
40 m² (8m diep en 5m breed)

Voorzieningen in de buurt

Boodschappen0,8 km
Grote supermarkt0,8 km
Cafetaria0,7 km
Restaurant0,7 km
Huisarts0,5 km
Ziekenhuis7,5 km
Kinderdagverblijf0,5 km
BSO0,5 km
Alle voorzieningen in Oostvaardersbuurt

Binnenkijken bij Hollandiastraat 61 te Almere

Meer meldingen in deze omgeving

112 melding
Dinsdag 14-4-2026 om 18:11
Laan der V.O.C., Almere

112 melding
Dinsdag 14-4-2026 om 17:50
Laan der V.O.C., Almere

Binnenkijken bij
Dinsdag 14-4-2026
Dageraadstraat 58, 1335VP Almere

Nieuw bedrijf
April 2026
Vergulde Draakstraat 15, 1335WL Almere

112 melding
Maandag 13-4-2026 om 20:26
Willem de Vlaminghstraat, Almere

112 melding
Maandag 13-4-2026 om 20:24
Willem de Vlaminghstraat, Almere

112 melding
Maandag 13-4-2026 om 20:24
Willem de Vlaminghstraat, Almere

Binnenkijken bij
Maandag 13-4-2026
Galjoenstraat 13, 1335SR Almere

Direct een e-mail ontvangen bij nieuwe meldingen in deze regio?

Meld je dan GRATIS aan voor de Oozo Alert service voor Oostvaardersbuurt

Instellen

Meer nieuws in Oostvaardersbuurt

Weten hoe eenvoudig het is om af te vallen? Zonder pillen en smeersels en zonder je in het zweet te werken!
Kijk op eenvoudig-afvallen.nl

© 2012 - 2026 OOZO.nl - info@oozo.nl - Gegevens verwijderen? | Disclaimer | Privacy statement