Woning Marktgracht 98 Almere

Marktgracht 98, 1354BE Almere

Ontvang updates voor Centrum Almere Haven

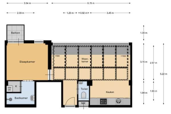
Het adres van deze woning uit 2025 is Marktgracht 98 te Almere. Het pand heeft een oppervlakte van 43m² en heeft 2 kamers kamers waarvan 1 slaapkamers. De geschatte waarde van deze woning is € 263.250.

Bekijk alle woningen in Centrum Almere Haven

Gegevens van Portiekflat (appartement)

Bouwjaar
2025
Geschatte waarde
€ 263.250
Oppervlakte
43 m2
Inhoud
112 m3
Aantal kamers
2 kamers
Slaapkamers
1
Soort bouw
Nieuwbouw
Ligging
In centrum

Voorzieningen in de buurt

Boodschappen0,2 km
Grote supermarkt0,3 km
Cafetaria0,2 km
Restaurant0,1 km
Huisarts0,4 km
Ziekenhuis6,0 km
Kinderdagverblijf0,9 km
BSO1,4 km
Alle voorzieningen in Centrum Almere Haven

Binnenkijken bij Marktgracht 98 te Almere

Meer meldingen in deze omgeving

Binnenkijken bij
Dinsdag 16-12-2025
Marktgracht 116, 1354BE Almere

Nieuw bedrijf
December 2025
Markt 74, 1354AX Almere

Binnenkijken bij
Donderdag 4-12-2025
Meerstraat 30, 1353AX Almere

Nieuw bedrijf
December 2025
Kerkgracht 30, 1354AM Almere

Onroerend goed
Woensdag 3-12-2025
Kruisstraat 70, 1353AP Almere

Binnenkijken bij
Woensdag 3-12-2025
Veerkade 66, 1357PN Almere

112 melding
Dinsdag 2-12-2025 om 20:21
Sluis, Almere

Binnenkijken bij
Dinsdag 2-12-2025
Kerkgracht 50, 1354AM Almere

Direct een e-mail ontvangen bij nieuwe meldingen in deze regio?

Meld je dan GRATIS aan voor de Oozo Alert service voor Centrum Almere Haven

Instellen

Meer nieuws in Centrum Almere Haven

Weten hoe eenvoudig het is om af te vallen? Zonder pillen en smeersels en zonder je in het zweet te werken!
Kijk op eenvoudig-afvallen.nl

© 2012 - 2025 OOZO.nl - info@oozo.nl - Gegevens verwijderen? | Disclaimer | Privacy statement