Woning Adriaen Blockstraat 84 Almere

Adriaen Blockstraat 84, 1363LT Almere

Ontvang updates voor Columbuskwartier

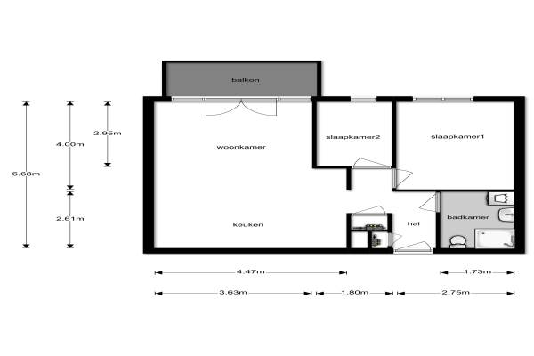
Het adres van deze woning uit 2015 is Adriaen Blockstraat 84 te Almere. Het pand heeft een oppervlakte van 55m² en heeft 3 kamers kamers waarvan 2 slaapkamers. De geschatte waarde van deze woning is € 150.000.

Bekijk alle woningen in Columbuskwartier

Gegevens van Portiekflat (appartement)

Bouwjaar
2015
Geschatte waarde
€ 150.000
Oppervlakte
55 m2
Inhoud
160 m3
Aantal kamers
3 kamers
Slaapkamers
2
Soort bouw
Bestaande bouw
Eigendomssituatie
Volle eigendom
Ligging
In woonwijk en in bosrijke omgeving

Voorzieningen in de buurt

Boodschappen0,5 km
Grote supermarkt0,5 km
Cafetaria0,8 km
Restaurant0,8 km
Huisarts1,2 km
Ziekenhuis1,6 km
Kinderdagverblijf0,4 km
BSO0,3 km
Alle voorzieningen in Columbuskwartier

Binnenkijken bij Adriaen Blockstraat 84 te Almere

Meer meldingen in deze omgeving

Binnenkijken bij
Zaterdag 29-11-2025
Ernest Shackletonstraat 14, 1363KD Almere

Binnenkijken bij
Vrijdag 28-11-2025
Dettifossstraat 78, 1363BX Almere

Nieuw bedrijf
November 2025
Adriaen Blockstraat 16, 1363LT Almere

Nieuw bedrijf
November 2025
Jens Munkstraat 15, 1363LE Almere

Binnenkijken bij
Dinsdag 25-11-2025
James Cookroute 129, 1363KE Almere

Binnenkijken bij
Vrijdag 21-11-2025
Abel Tasmanstraat 93, 1363KB Almere

Binnenkijken bij
Vrijdag 21-11-2025
Vitus Beringstraat 26, 1363LR Almere

Nieuw bedrijf
November 2025
James Cookroute 44, 1363KG Almere

Direct een e-mail ontvangen bij nieuwe meldingen in deze regio?

Meld je dan GRATIS aan voor de Oozo Alert service voor Columbuskwartier

Instellen

Meer nieuws in Columbuskwartier

Weten hoe eenvoudig het is om af te vallen? Zonder pillen en smeersels en zonder je in het zweet te werken!
Kijk op eenvoudig-afvallen.nl

© 2012 - 2025 OOZO.nl - info@oozo.nl - Gegevens verwijderen? | Disclaimer | Privacy statement