Woning Poseidonsingel 55Q Almere

Poseidonsingel 55Q, 1363TR Almere

Ontvang updates voor Homeruskwartier

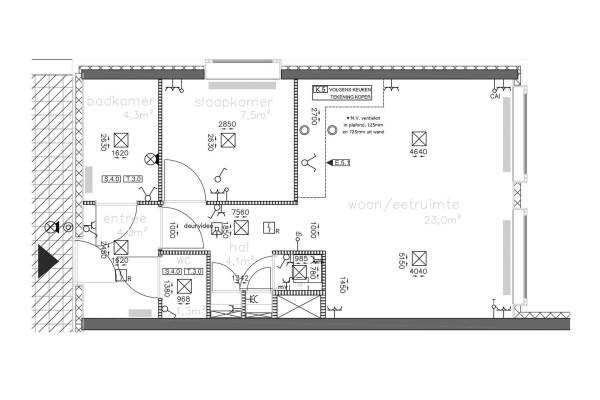
Het adres van deze woning is Poseidonsingel 55Q te Almere. Het pand heeft een oppervlakte van 47m² en heeft 2 kamers kamers waarvan 1 slaapkamers. De geschatte waarde van deze woning is € 114.000.

Bekijk alle woningen in Homeruskwartier

Gegevens van

Geschatte waarde
€ 114.000
Oppervlakte
47 m² woonopp. m2
Aantal kamers
2 kamers

Voorzieningen in de buurt

Boodschappen0,5 km
Grote supermarkt1,3 km
Cafetaria0,5 km
Restaurant0,6 km
Huisarts0,6 km
Ziekenhuis1,2 km
Kinderdagverblijf0,5 km
BSO0,5 km
Alle voorzieningen in Homeruskwartier

Binnenkijken bij Poseidonsingel 55Q te Almere

Meer meldingen in deze omgeving

Nieuw bedrijf
Oktober 2025
Homeruslaan 109, 1363TA Almere

Nieuw bedrijf
Oktober 2025
Zeussingel 93, 1363TM Almere

Faillissement
Woensdag 1-10-2025
Homeruslaan 201, 1363TA Almere

Binnenkijken bij
Woensdag 1-10-2025
Justitiahof 10, 1363SB Almere

112 melding
Dinsdag 30-9-2025 om 18:32
Homerusstraat, 1363SW Almere

Binnenkijken bij
Dinsdag 30-9-2025
Damarapad 11, 1363XS Almere

112 melding
Vrijdag 26-9-2025 om 16:31
Homeruslaan, 1363TA Almere

Binnenkijken bij
Vrijdag 26-9-2025
Saturnussingel 233, 1363RG Almere

Direct een e-mail ontvangen bij nieuwe meldingen in deze regio?

Meld je dan GRATIS aan voor de Oozo Alert service voor Homeruskwartier

Instellen

Meer nieuws in Homeruskwartier

Weten hoe eenvoudig het is om af te vallen? Zonder pillen en smeersels en zonder je in het zweet te werken!
Kijk op eenvoudig-afvallen.nl

© 2012 - 2025 OOZO.nl - info@oozo.nl - Gegevens verwijderen? | Disclaimer | Privacy statement