Woning Saturnussingel 211 Almere

Saturnussingel 211, 1363RG Almere

Ontvang updates voor Homeruskwartier

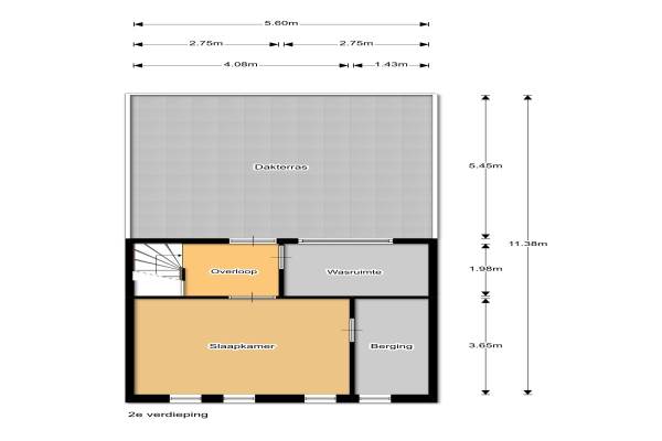
Het adres van deze woning uit 2015 is Saturnussingel 211 te Almere. Het pand heeft een oppervlakte van 160m² en een perceeloppervlakte van 130m² en heeft 5 kamers kamers waarvan 4 slaapkamers. De geschatte waarde van deze woning is € 375.000.

Bekijk alle woningen in Homeruskwartier

Gegevens van Eengezinswoning, tussenwoning

Bouwjaar
2015
Geschatte waarde
€ 375.000
Oppervlakte
160 m2
Inhoud
480 m3
Aantal kamers
5 kamers
Slaapkamers
4
Badkamers
1 badkamer en 1 apart toilet
Soort bouw
Bestaande bouw
Eigendomssituatie
Volle eigendom
Ligging
Aan bosrand, aan rustige weg, in woonwijk, vrij uitzicht en in bosrijke omgeving
Tuin
Achtertuin
Achtertuin
60 m² (10m diep en 6m breed)

Voorzieningen in de buurt

Boodschappen0,5 km
Grote supermarkt1,3 km
Cafetaria0,5 km
Restaurant0,6 km
Huisarts0,6 km
Ziekenhuis1,2 km
Kinderdagverblijf0,5 km
BSO0,5 km
Alle voorzieningen in Homeruskwartier

Binnenkijken bij Saturnussingel 211 te Almere

Meer meldingen in deze omgeving

112 melding
Zaterdag 29-11-2025 om 14:12
Homerusstraat, 1363SW Almere

Binnenkijken bij
Zaterdag 29-11-2025
Mazustraat 48, 1363RE Almere

Nieuw bedrijf
November 2025
Iskurstraat 36, 1363RC Almere

Nieuw bedrijf
November 2025
Hachimanstraat 4, 1363RR Almere

Nieuw bedrijf
November 2025
Hebatstraat 5, 1363RD Almere

Nieuw bedrijf
November 2025
Horusstraat 24, 1363XN Almere

Nieuw bedrijf
November 2025
Poseidonsingel 88, 1363TR Almere

Nieuw bedrijf
November 2025
Medusastraat 15, 1363TW Almere

Direct een e-mail ontvangen bij nieuwe meldingen in deze regio?

Meld je dan GRATIS aan voor de Oozo Alert service voor Homeruskwartier

Instellen

Meer nieuws in Homeruskwartier

Weten hoe eenvoudig het is om af te vallen? Zonder pillen en smeersels en zonder je in het zweet te werken!
Kijk op eenvoudig-afvallen.nl

© 2012 - 2025 OOZO.nl - info@oozo.nl - Gegevens verwijderen? | Disclaimer | Privacy statement