Woning Sinonstraat 6 Almere

Sinonstraat 6, 1363VX Almere

Ontvang updates voor Homeruskwartier

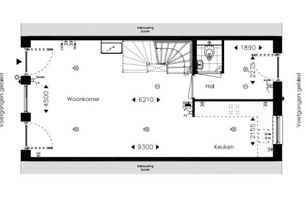
Het adres van deze woning uit 2018 is Sinonstraat 6 te Almere. Het pand heeft een oppervlakte van 126m² en een perceeloppervlakte van 97m² en heeft 5 kamers kamers waarvan 4 slaapkamers. De geschatte waarde van deze woning is € 275.000.

Bekijk alle woningen in Homeruskwartier

Gegevens van Eengezinswoning, tussenwoning

Bouwjaar
2018
Geschatte waarde
€ 275.000
Oppervlakte
126 m2
Inhoud
361 m3
Aantal kamers
5 kamers
Slaapkamers
4
Badkamers
1 badkamer en 1 apart toilet
Soort bouw
Bestaande bouw

Voorzieningen in de buurt

Boodschappen0,5 km
Grote supermarkt1,3 km
Cafetaria0,5 km
Restaurant0,6 km
Huisarts0,6 km
Ziekenhuis1,2 km
Kinderdagverblijf0,5 km
BSO0,5 km
Alle voorzieningen in Homeruskwartier

Binnenkijken bij Sinonstraat 6 te Almere

Meer meldingen in deze omgeving

Nieuw bedrijf
December 2025
Dionysusstraat 7, 1363TN Almere

Nieuw bedrijf
December 2025
Icarusstraat 15, 1363SH Almere

Nieuw bedrijf
December 2025
Freyjaplantsoen 65, 1363WB Almere

Nieuw bedrijf
December 2025
Nimfenplein 9, 1363SV Almere

Binnenkijken bij
Donderdag 4-12-2025
Lokistraat 16, 1363WG Almere

Nieuw bedrijf
December 2025
Iskurstraat 36, 1363RC Almere

Nieuw bedrijf
December 2025
Hachimanstraat 4, 1363RR Almere

Nieuw bedrijf
December 2025
Hebatstraat 5, 1363RD Almere

Direct een e-mail ontvangen bij nieuwe meldingen in deze regio?

Meld je dan GRATIS aan voor de Oozo Alert service voor Homeruskwartier

Instellen

Meer nieuws in Homeruskwartier

Weten hoe eenvoudig het is om af te vallen? Zonder pillen en smeersels en zonder je in het zweet te werken!
Kijk op eenvoudig-afvallen.nl

© 2012 - 2025 OOZO.nl - info@oozo.nl - Gegevens verwijderen? | Disclaimer | Privacy statement