Woning Saturnussingel 229 Almere

Saturnussingel 229, 1363RG Almere

Ontvang updates voor Homeruskwartier

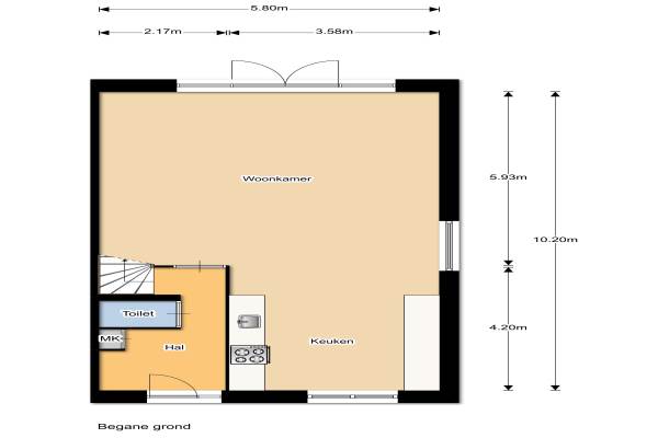
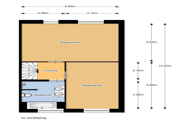
Het adres van deze woning uit 2015 is Saturnussingel 229 te Almere. Het pand heeft een oppervlakte van 176m² en een perceeloppervlakte van 152m² en heeft 5 kamers kamers waarvan 4 slaapkamers. De geschatte waarde van deze woning is € 425.000.

Bekijk alle woningen in Homeruskwartier

Gegevens van Eengezinswoning, eindwoning

Bouwjaar
2015
Geschatte waarde
€ 425.000
Oppervlakte
176 m2
Inhoud
535 m3
Aantal kamers
5 kamers
Slaapkamers
4
Badkamers
2 badkamers en 1 apart toilet
Soort bouw
Bestaande bouw
Eigendomssituatie
Volle eigendom
Ligging
Aan bosrand, in woonwijk, vrij uitzicht en in bosrijke omgeving
Tuin
Achtertuin en voortuin

Voorzieningen in de buurt

Boodschappen0,5 km
Grote supermarkt1,3 km
Cafetaria0,5 km
Restaurant0,6 km
Huisarts0,6 km
Ziekenhuis1,2 km
Kinderdagverblijf0,5 km
BSO0,5 km
Alle voorzieningen in Homeruskwartier

Binnenkijken bij Saturnussingel 229 te Almere

Meer meldingen in deze omgeving

Binnenkijken bij
Maandag 6-4-2026
Artemissingel 237, 1363TG Almere

112 melding
Zondag 5-4-2026 om 20:51
Anubisstraat, 1363XJ Almere

Binnenkijken bij
Vrijdag 3-4-2026
Trojestraat 9, 1363VL Almere

Binnenkijken bij
Donderdag 2-4-2026
Neptunussingel 23, 1363VV Almere

Binnenkijken bij
Woensdag 1-4-2026
Saturnussingel 500, 1363RG Almere

Binnenkijken bij
Woensdag 1-4-2026
Anubisstraat 90, 1363XJ Almere

Binnenkijken bij
Dinsdag 31-3-2026
Iyohof 2, 1363RZ Almere

Nieuw bedrijf
Maart 2026
Poseidonsingel 55f, 1363TR Almere

Direct een e-mail ontvangen bij nieuwe meldingen in deze regio?

Meld je dan GRATIS aan voor de Oozo Alert service voor Homeruskwartier

Instellen

Meer nieuws in Homeruskwartier

Weten hoe eenvoudig het is om af te vallen? Zonder pillen en smeersels en zonder je in het zweet te werken!
Kijk op eenvoudig-afvallen.nl

© 2012 - 2026 OOZO.nl - info@oozo.nl - Gegevens verwijderen? | Disclaimer | Privacy statement