Woning Blekerstraat 139 Almere

Blekerstraat 139, 1315AE Almere

Ontvang updates voor Centrum Almere-Stad

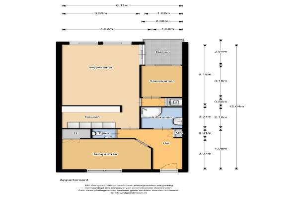
Het adres van deze woning uit 1982 is Blekerstraat 139 te Almere. Het pand heeft een oppervlakte van 75m² en heeft 3 kamers kamers waarvan 2 slaapkamers. De geschatte waarde van deze woning is € 150.000.

Bekijk alle woningen in Centrum Almere-Stad

Gegevens van Galerijflat (appartement)

Bouwjaar
1982
Geschatte waarde
€ 150.000
Oppervlakte
75 m2
Inhoud
220 m3
Aantal kamers
3 kamers
Slaapkamers
2
Badkamers
1 apart toilet
Soort bouw
Bestaande bouw
Eigendomssituatie
Volle eigendom
Ligging
In centrum

Voorzieningen in de buurt

Boodschappen0,2 km
Grote supermarkt0,3 km
Cafetaria0,2 km
Restaurant0,2 km
Huisarts0,5 km
Ziekenhuis0,9 km
Kinderdagverblijf0,7 km
BSO0,4 km
Alle voorzieningen in Centrum Almere-Stad

Binnenkijken bij Blekerstraat 139 te Almere

Meer meldingen in deze omgeving

112 melding
Dinsdag 16-12-2025 om 20:47
Beeldhouwerpad, Almere

112 melding
Dinsdag 16-12-2025 om 12:22
Hospitaalweg, 1315RA Almere

112 melding
Dinsdag 16-12-2025 om 12:22
Hospitaalweg, 1315RA Almere

Nieuw bedrijf
December 2025
Stationsplein 46, 1315KT Almere

Nieuw bedrijf
December 2025
Olof Palmehof 28, 1314WC Almere

Nieuw bedrijf
December 2025
Mandelaplein 1, 1314CG Almere

Nieuw bedrijf
December 2025
De Diagonaal 199, 1315XM Almere

112 melding
Maandag 15-12-2025 om 23:02
Korte Promenade, Almere

Direct een e-mail ontvangen bij nieuwe meldingen in deze regio?

Meld je dan GRATIS aan voor de Oozo Alert service voor Centrum Almere-Stad

Instellen

Meer nieuws in Centrum Almere-Stad

Weten hoe eenvoudig het is om af te vallen? Zonder pillen en smeersels en zonder je in het zweet te werken!
Kijk op eenvoudig-afvallen.nl

© 2012 - 2025 OOZO.nl - info@oozo.nl - Gegevens verwijderen? | Disclaimer | Privacy statement