Woning Frambozenstraat 16 Almere

Frambozenstraat 16, 1326HC Almere

Ontvang updates voor Parkwijk

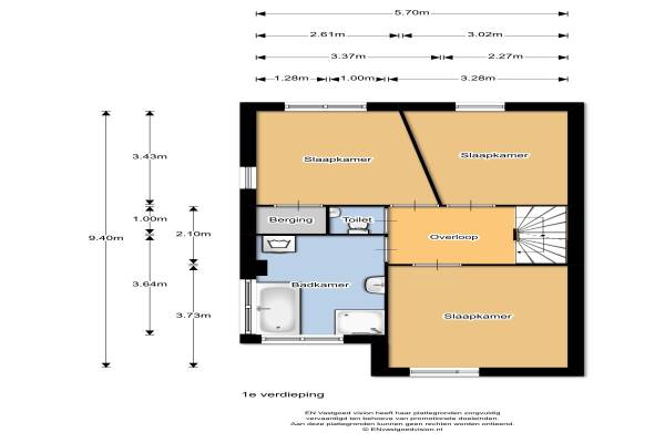
Het adres van deze woning uit 1997 is Frambozenstraat 16 te Almere. Het pand heeft een oppervlakte van 128m² en een perceeloppervlakte van 207m² en heeft 5 kamers kamers waarvan 4 slaapkamers. De geschatte waarde van deze woning is € 200.000.

Bekijk alle woningen in Parkwijk

Gegevens van Eengezinswoning, hoekwoning

Bouwjaar
1997
Geschatte waarde
€ 200.000
Oppervlakte
128 m2
Inhoud
425 m3
Aantal kamers
5 kamers
Slaapkamers
4
Badkamers
1 badkamer en 2 aparte toiletten
Soort bouw
Bestaande bouw
Eigendomssituatie
Volle eigendom
Ligging
In woonwijk en vrij uitzicht
Tuin
Achtertuin, voortuin en zijtuin
Achtertuin
94 m² (12,5m diep en 7,5m breed)

Voorzieningen in de buurt

Boodschappen0,6 km
Grote supermarkt0,6 km
Cafetaria0,5 km
Restaurant0,7 km
Huisarts0,7 km
Ziekenhuis2,2 km
Kinderdagverblijf0,3 km
BSO0,4 km
Alle voorzieningen in Parkwijk

Binnenkijken bij Frambozenstraat 16 te Almere

Meer meldingen in deze omgeving

112 melding
Vrijdag 16-1-2026 om 17:37
Haagbeukweg, 1326CP Almere

Binnenkijken bij
Vrijdag 16-1-2026
Druivenstraat 35, 1326JW Almere

Binnenkijken bij
Donderdag 15-1-2026
Frambozenstraat 32, 1326JN Almere

112 melding
Dinsdag 6-1-2026 om 15:23
Haagbeukweg, 1326EH Almere

Binnenkijken bij
Dinsdag 6-1-2026
Kiwistraat 19, 1326GJ Almere

Binnenkijken bij
Dinsdag 6-1-2026
Amandelhof 7, 1326JK Almere

Binnenkijken bij
Donderdag 1-1-2026
Kiwistraat 20, 1326GJ Almere

Nieuw bedrijf
Januari 2026
Druivenstraat 26, 1326JW Almere

Direct een e-mail ontvangen bij nieuwe meldingen in deze regio?

Meld je dan GRATIS aan voor de Oozo Alert service voor Parkwijk

Instellen

Meer nieuws in Parkwijk

Weten hoe eenvoudig het is om af te vallen? Zonder pillen en smeersels en zonder je in het zweet te werken!
Kijk op eenvoudig-afvallen.nl

© 2012 - 2026 OOZO.nl - info@oozo.nl - Gegevens verwijderen? | Disclaimer | Privacy statement