Woning Afrikalaan 139 ALPHEN AAN DEN RIJN

Afrikalaan 139, 2408PA ALPHEN AAN DEN RIJN

Ontvang updates voor Polderpeil-West

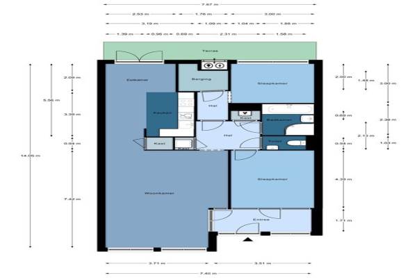
Het adres van deze woning uit 1996 is Afrikalaan 139 te ALPHEN AAN DEN RIJN. Het pand heeft een oppervlakte van 100m² en heeft 3 kamers kamers waarvan 2 slaapkamers. De geschatte waarde van deze woning is € 335.000.

Bekijk alle woningen in Polderpeil-West

Gegevens van Benedenwoning

Bouwjaar
1996
Geschatte waarde
€ 335.000
Oppervlakte
100 m2
Aantal kamers
3 kamers
Slaapkamers
2
Tuin
Tuin

Voorzieningen in de buurt

Boodschappen1,1 km
Grote supermarkt1,3 km
Cafetaria1,3 km
Restaurant1,1 km
Huisarts0,5 km
Ziekenhuis4,5 km
Kinderdagverblijf1,0 km
BSO1,0 km
Alle voorzieningen in Polderpeil-West

Binnenkijken bij Afrikalaan 139 te ALPHEN AAN DEN RIJN

Meer meldingen in deze omgeving

Binnenkijken bij
Maandag 9-2-2026
Polderpeil 294, 2408RJ Alphen aan den Rijn

Binnenkijken bij
Zondag 1-2-2026
Polderpeil 296, 2408RJ Alphen aan den Rijn

112 melding
Dinsdag 27-1-2026 om 17:15
Spuisluis, Alphen aan den Rijn

112 melding
Maandag 12-1-2026 om 13:44
Spuisluis, Alphen aan den Rijn

Binnenkijken bij
Vrijdag 9-1-2026
Polderpeil 180, 2408RH Alphen aan den Rijn

Binnenkijken bij
Dinsdag 6-1-2026
Polderpeil 93, 2408SB Alphen aan den Rijn

112 melding
Donderdag 25-12-2025 om 21:39
Keersluis, Alphen aan den Rijn

112 melding
Donderdag 25-12-2025 om 05:12
Spuisluis, Alphen aan den Rijn

Direct een e-mail ontvangen bij nieuwe meldingen in deze regio?

Meld je dan GRATIS aan voor de Oozo Alert service voor Polderpeil-West

Instellen

Meer nieuws in Polderpeil-West

Weten hoe eenvoudig het is om af te vallen? Zonder pillen en smeersels en zonder je in het zweet te werken!
Kijk op eenvoudig-afvallen.nl

© 2012 - 2026 OOZO.nl - info@oozo.nl - Gegevens verwijderen? | Disclaimer | Privacy statement