Woning Voorsteven 76 Amsterdam

Voorsteven 76, 1034SN Amsterdam

Ontvang updates voor Banne Noordwest

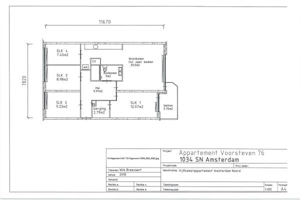
Het adres van deze woning uit 1977 is Voorsteven 76 te Amsterdam. Het pand heeft een oppervlakte van 90m² en heeft 6 kamers kamers waarvan 4 slaapkamers. De geschatte waarde van deze woning is € 285.000.

Bekijk alle woningen in Banne Noordwest

Gegevens van Bovenwoning (bel-etage)

Bouwjaar
1977
Geschatte waarde
€ 285.000
Oppervlakte
90 m2
Inhoud
224 m3
Aantal kamers
6 kamers
Slaapkamers
4
Soort bouw
Bestaande bouw
Ligging
Aan water, vrij uitzicht en beschutte ligging

Voorzieningen in de buurt

Boodschappen0,8 km
Grote supermarkt0,8 km
Cafetaria0,6 km
Restaurant2,0 km
Huisarts0,7 km
Ziekenhuis1,1 km
Kinderdagverblijf0,3 km
BSO0,3 km
Alle voorzieningen in Banne Noordwest

Binnenkijken bij Voorsteven 76 te Amsterdam

Meer meldingen in deze omgeving

Nieuw bedrijf
Januari 2026
Overslaghof 7, 1034RV Amsterdam

Nieuw bedrijf
Januari 2026
Overslaghof 91, 1034RX Amsterdam

Nieuw bedrijf
Januari 2026
Overslaghof 19, 1034RV Amsterdam

Nieuw bedrijf
Januari 2026
Westerlengte 34, 1034RM Amsterdam

112 melding
Woensdag 31-12-2025 om 23:05
Parlevinkerpad, 1034JE Amsterdam

112 melding
Woensdag 31-12-2025 om 22:06
Parlevinkerpad, 1034JE Amsterdam

112 melding
Dinsdag 30-12-2025 om 20:19
Binnenvaart, Amsterdam

Binnenkijken bij
Dinsdag 30-12-2025
Achtersteven 25, 1034VB Amsterdam

Direct een e-mail ontvangen bij nieuwe meldingen in deze regio?

Meld je dan GRATIS aan voor de Oozo Alert service voor Banne Noordwest

Instellen

Meer nieuws in Banne Noordwest

Weten hoe eenvoudig het is om af te vallen? Zonder pillen en smeersels en zonder je in het zweet te werken!
Kijk op eenvoudig-afvallen.nl

© 2012 - 2026 OOZO.nl - info@oozo.nl - Gegevens verwijderen? | Disclaimer | Privacy statement