Woning Bilderdijkkade 19A2 Amsterdam

Bilderdijkkade 19A2, 1053VB Amsterdam

Ontvang updates voor Da Costabuurt Noord

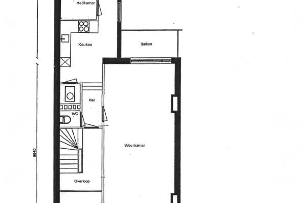
Het adres van deze woning uit 1905 is Bilderdijkkade 19A2 te Amsterdam. Het pand heeft een oppervlakte van 83m² en heeft 3 kamers kamers waarvan 2 slaapkamers. De geschatte waarde van deze woning is € 675.000.

Bekijk alle woningen in Da Costabuurt Noord

Gegevens van Bovenwoning (appartement)

Bouwjaar
1905
Geschatte waarde
€ 675.000
Oppervlakte
83 m2
Inhoud
200 m3
Aantal kamers
3 kamers
Slaapkamers
2
Badkamers
1 badkamer en 1 apart toilet
Soort bouw
Bestaande bouw
Eigendomssituatie
Gemeentelijk eigendom belast met erfpacht
Ligging
Aan rustige weg en aan water

Voorzieningen in de buurt

Boodschappen0,1 km
Grote supermarkt0,1 km
Cafetaria0,1 km
Restaurant0,1 km
Huisarts0,2 km
Ziekenhuis1,4 km
Kinderdagverblijf0,2 km
BSO0,2 km
Alle voorzieningen in Da Costabuurt Noord

Binnenkijken bij Bilderdijkkade 19A2 te Amsterdam

Meer meldingen in deze omgeving

Binnenkijken bij
Dinsdag 5-5-2026
Da Costakade 168B, 1053XD Amsterdam

Binnenkijken bij
Dinsdag 5-5-2026
Da Costastraat 75H, 1053ZG Amsterdam

Binnenkijken bij
Dinsdag 5-5-2026
Da Costakade 153, 1053WV Amsterdam

Binnenkijken bij
Dinsdag 5-5-2026
Da Costakade 612, 1053WG Amsterdam

Binnenkijken bij
Dinsdag 5-5-2026
Bilderdijkstraat 1203, 1053KZ Amsterdam

Binnenkijken bij
Dinsdag 5-5-2026
Kinkerstraat 904, 1053EB Amsterdam

Binnenkijken bij
Dinsdag 5-5-2026
Da Costakade 1182, 1053XB Amsterdam

Binnenkijken bij
Dinsdag 5-5-2026
Da Costastraat 234, 1053ZA Amsterdam

Direct een e-mail ontvangen bij nieuwe meldingen in deze regio?

Meld je dan GRATIS aan voor de Oozo Alert service voor Da Costabuurt Noord

Instellen

Meer nieuws in Da Costabuurt Noord

Weten hoe eenvoudig het is om af te vallen? Zonder pillen en smeersels en zonder je in het zweet te werken!
Kijk op eenvoudig-afvallen.nl

© 2012 - 2026 OOZO.nl - info@oozo.nl - Gegevens verwijderen? | Disclaimer | Privacy statement