Woning Akbarstraat 30D Amsterdam

Akbarstraat 30D, 1061EB Amsterdam

Ontvang updates voor Kolenkitbuurt Noord

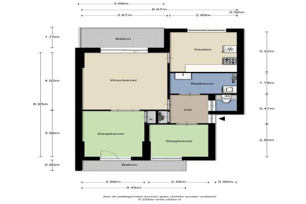
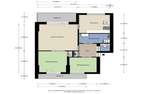
Het adres van deze woning uit 1952 is Akbarstraat 30D te Amsterdam. Het pand heeft een oppervlakte van 60m² en heeft 3 kamers kamers waarvan 2 slaapkamers. De geschatte waarde van deze woning is € 250.000.

Bekijk alle woningen in Kolenkitbuurt Noord

Gegevens van Bovenwoning (appartement)

Bouwjaar
1952
Geschatte waarde
€ 250.000
Oppervlakte
60 m2
Inhoud
191 m3
Aantal kamers
3 kamers
Slaapkamers
2
Badkamers
1 badkamer en 1 apart toilet
Soort bouw
Bestaande bouw
Eigendomssituatie
Gemeentelijk eigendom belast met erfpacht (einddatum erfpacht: 15-12-2054)
Ligging
Aan rustige weg en in woonwijk

Voorzieningen in de buurt

Boodschappen0,3 km
Grote supermarkt0,5 km
Cafetaria0,2 km
Restaurant0,3 km
Huisarts0,5 km
Ziekenhuis1,5 km
Kinderdagverblijf0,2 km
BSO0,3 km
Alle voorzieningen in Kolenkitbuurt Noord

Binnenkijken bij Akbarstraat 30D te Amsterdam

Meer meldingen in deze omgeving

112 melding
Zaterdag 13-12-2025 om 15:08
Vrouwengelukhof, 1061BS Amsterdam

Nieuw bedrijf
December 2025
Ferdinand Huyckstraat 251, 1061HH Amsterdam

Nieuw bedrijf
December 2025
Berceusestraat 133, 1061HX Amsterdam

Nieuw bedrijf
December 2025
Berceusestraat 133, 1061HX Amsterdam

Nieuw bedrijf
December 2025
Elfendansstraat 79, 1061BR Amsterdam

Nieuw bedrijf
December 2025
Meimorgenstraat 35, 1061BN Amsterdam

112 melding
Woensdag 10-12-2025 om 23:52
Berceusestraat, 1061HX Amsterdam

112 melding
Woensdag 10-12-2025 om 10:21
Sinjeur Semeynsstraat, Amsterdam

Direct een e-mail ontvangen bij nieuwe meldingen in deze regio?

Meld je dan GRATIS aan voor de Oozo Alert service voor Kolenkitbuurt Noord

Instellen

Meer nieuws in Kolenkitbuurt Noord

Weten hoe eenvoudig het is om af te vallen? Zonder pillen en smeersels en zonder je in het zweet te werken!
Kijk op eenvoudig-afvallen.nl

© 2012 - 2025 OOZO.nl - info@oozo.nl - Gegevens verwijderen? | Disclaimer | Privacy statement