Woning Sibogastraat 18 Amsterdam

Sibogastraat 18, 1094SM Amsterdam

Ontvang updates voor Zuidwestkwadrant Indische buurt

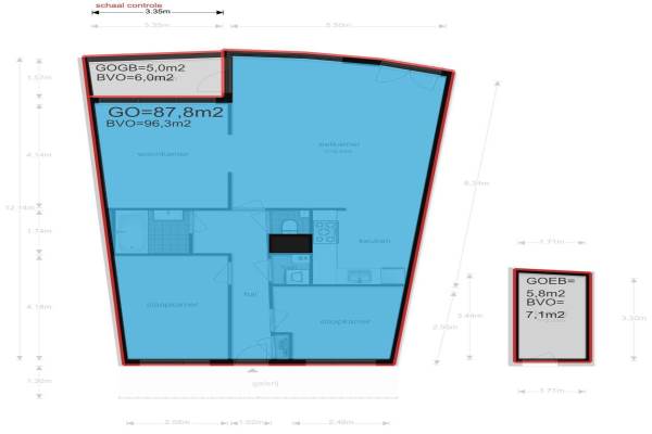
Het adres van deze woning is Sibogastraat 18 te Amsterdam. Het pand heeft een oppervlakte van 88m² en heeft 4 kamers kamers waarvan 2 slaapkamers. De geschatte waarde van deze woning is € 400.000.

Bekijk alle woningen in Zuidwestkwadrant Indische buurt

Gegevens van Portiekflat (appartement)

Geschatte waarde
€ 400.000
Oppervlakte
88 m2
Inhoud
262 m3
Aantal kamers
4 kamers
Slaapkamers
2
Badkamers
1 badkamer en 1 apart toilet
Soort bouw
Bestaande bouw
Eigendomssituatie
Gemeentelijke erfpacht
Ligging
In woonwijk

Voorzieningen in de buurt

Boodschappen0,2 km
Grote supermarkt0,3 km
Cafetaria0,3 km
Restaurant0,2 km
Huisarts0,2 km
Ziekenhuis1,6 km
Kinderdagverblijf0,1 km
BSO0,4 km
Alle voorzieningen in Zuidwestkwadrant Indische buurt

Binnenkijken bij Sibogastraat 18 te Amsterdam

Meer meldingen in deze omgeving

Nieuw bedrijf
November 2025
Formosastraat 93, 1094SW Amsterdam

Binnenkijken bij
Dinsdag 25-11-2025
Boniplein 10, 1094SE Amsterdam

112 melding
Zondag 23-11-2025 om 14:05
Halmaheirastraat, Amsterdam

112 melding
Zaterdag 22-11-2025 om 14:21
Minahassastraat, Amsterdam

Binnenkijken bij
Vrijdag 21-11-2025
Insulindeweg 468, 1094MH Amsterdam

Nieuw bedrijf
November 2025
Sumatrastraat 111D, 1094LT Amsterdam

Nieuw bedrijf
November 2025
Formosastraat 37, 1094SW Amsterdam

112 melding
Woensdag 19-11-2025 om 19:55
Minahassastraat, Amsterdam

Direct een e-mail ontvangen bij nieuwe meldingen in deze regio?

Meld je dan GRATIS aan voor de Oozo Alert service voor Zuidwestkwadrant Indische buurt

Instellen

Meer nieuws in Zuidwestkwadrant Indische buurt

Weten hoe eenvoudig het is om af te vallen? Zonder pillen en smeersels en zonder je in het zweet te werken!
Kijk op eenvoudig-afvallen.nl

© 2012 - 2025 OOZO.nl - info@oozo.nl - Gegevens verwijderen? | Disclaimer | Privacy statement