Woning Mr. P.N. Arntzeniusweg 10 Amsterdam

Mr. P.N. Arntzeniusweg 10, 1098GN Amsterdam

Ontvang updates voor Linnaeusparkbuurt

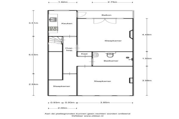
Het adres van deze woning uit 1928 is Mr. P.N. Arntzeniusweg 10 te Amsterdam. Het pand heeft een oppervlakte van 146m² en heeft 6 kamers kamers waarvan 4 slaapkamers. De geschatte waarde van deze woning is € 925.000.

Bekijk alle woningen in Linnaeusparkbuurt

Gegevens van Dubbel benedenhuis (appartement)

Bouwjaar
1928
Geschatte waarde
€ 925.000
Oppervlakte
146 m2
Inhoud
387 m3
Aantal kamers
6 kamers
Slaapkamers
4
Badkamers
1 badkamer en 1 apart toilet
Soort bouw
Bestaande bouw
Eigendomssituatie
Gemeentelijk eigendom belast met erfpacht (einddatum erfpacht: 16-06-2052)
Ligging
Aan rustige weg en in woonwijk
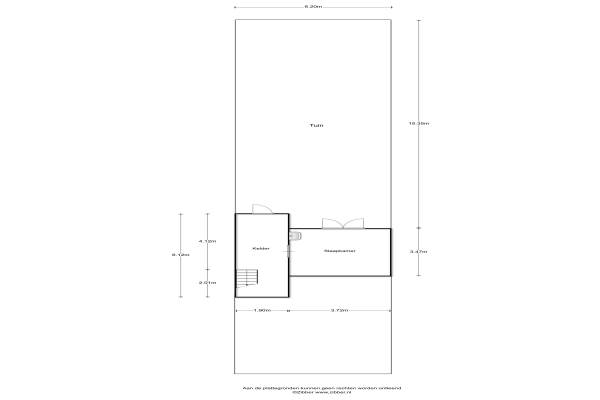
Tuin
Achtertuin
Achtertuin
95 m² (15,35m diep en 6,2m breed)

Voorzieningen in de buurt

Boodschappen0,2 km
Grote supermarkt0,3 km
Cafetaria0,2 km
Restaurant0,1 km
Huisarts0,3 km
Ziekenhuis1,6 km
Kinderdagverblijf0,2 km
BSO0,3 km
Alle voorzieningen in Linnaeusparkbuurt

Binnenkijken bij Mr. P.N. Arntzeniusweg 10 te Amsterdam

Meer meldingen in deze omgeving

Nieuw bedrijf
April 2026
Bredeweg 383, 1098BS Amsterdam

Binnenkijken bij
Maandag 13-4-2026
Bredeweg 411, 1098BN Amsterdam

Binnenkijken bij
Maandag 13-4-2026
Bredeweg 412, 1098BN Amsterdam

Nieuw bedrijf
April 2026
Bredeweg 383, 1098BS Amsterdam

Nieuw bedrijf
April 2026
Mr. P.N. Arntzeniusweg 16H, 1098GP Amsterdam

Nieuw bedrijf
April 2026
Middenweg 313, 1098AB Amsterdam

Nieuw bedrijf
April 2026
Mr. P.N. Arntzeniusweg 16H, 1098GP Amsterdam

Binnenkijken bij
Maandag 6-4-2026
Linnaeushof 95, 1098KT Amsterdam

Direct een e-mail ontvangen bij nieuwe meldingen in deze regio?

Meld je dan GRATIS aan voor de Oozo Alert service voor Linnaeusparkbuurt

Instellen

Meer nieuws in Linnaeusparkbuurt

Weten hoe eenvoudig het is om af te vallen? Zonder pillen en smeersels en zonder je in het zweet te werken!
Kijk op eenvoudig-afvallen.nl

© 2012 - 2026 OOZO.nl - info@oozo.nl - Gegevens verwijderen? | Disclaimer | Privacy statement