Woning Czaar Peterstraat 3 Amsterdam

Czaar Peterstraat 3, 1018NW Amsterdam

Ontvang updates voor Czaar Peterbuurt

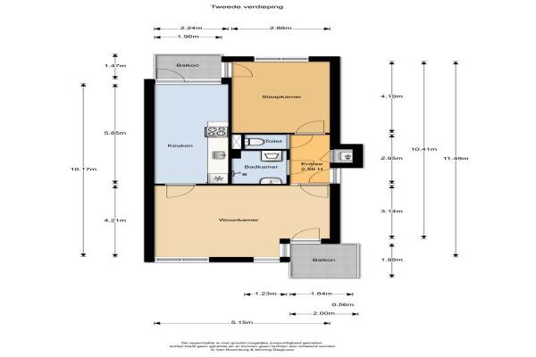
Het adres van deze woning uit 1986 is Czaar Peterstraat 3 te Amsterdam. Het pand heeft een oppervlakte van 55m² en heeft 2 kamers kamers waarvan 1 slaapkamers. De geschatte waarde van deze woning is € 295.000.

Bekijk alle woningen in Czaar Peterbuurt

Gegevens van Bovenwoning (appartement)

Bouwjaar
1986
Geschatte waarde
€ 295.000
Oppervlakte
55 m2
Inhoud
140 m3
Aantal kamers
2 kamers
Slaapkamers
1
Badkamers
1 badkamer en 1 apart toilet
Soort bouw
Bestaande bouw
Eigendomssituatie
Gemeentelijk eigendom belast met erfpacht
Ligging
In centrum, in woonwijk en open ligging

Voorzieningen in de buurt

Boodschappen0,1 km
Grote supermarkt0,3 km
Cafetaria0,1 km
Restaurant0,2 km
Huisarts0,3 km
Ziekenhuis1,9 km
Kinderdagverblijf0,2 km
BSO0,2 km
Alle voorzieningen in Czaar Peterbuurt

Binnenkijken bij Czaar Peterstraat 3 te Amsterdam

Meer meldingen in deze omgeving

112 melding
Maandag 17-11-2025 om 12:58
Kraijenhoffstraat, Amsterdam

112 melding
Maandag 17-11-2025 om 09:59
Cornelis Vermuydenstraat, 1018RN Amsterdam

112 melding
Maandag 17-11-2025 om 09:39
Cornelis Vermuydenstraat, 1018RN Amsterdam

Nieuw bedrijf
November 2025
Kraijenhoffstraat 137A, 1018RG Amsterdam

Nieuw bedrijf
November 2025
Kraijenhoffstraat 137A, 1018RG Amsterdam

Binnenkijken bij
Vrijdag 14-11-2025
Czaar Peterstraat 102C, 1018PS Amsterdam

Nieuw bedrijf
November 2025
Kraijenhoffstraat 201, 1018RK Amsterdam

Nieuw bedrijf
November 2025
Cornelis Vermuydenstraat 22, 1018RN Amsterdam

Direct een e-mail ontvangen bij nieuwe meldingen in deze regio?

Meld je dan GRATIS aan voor de Oozo Alert service voor Czaar Peterbuurt

Instellen

Meer nieuws in Czaar Peterbuurt

Weten hoe eenvoudig het is om af te vallen? Zonder pillen en smeersels en zonder je in het zweet te werken!
Kijk op eenvoudig-afvallen.nl

© 2012 - 2025 OOZO.nl - info@oozo.nl - Gegevens verwijderen? | Disclaimer | Privacy statement