Woning Eerste Jan van der Heijdenstraat 1391 Amsterdam

Eerste Jan van der Heijdenstraat 139-1, 1072TR Amsterdam

Ontvang updates voor Sarphatiparkbuurt

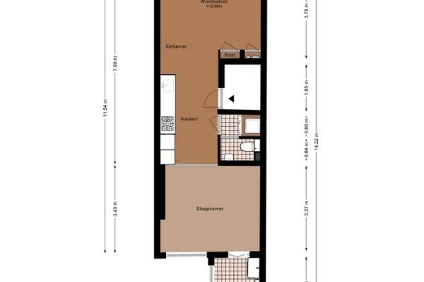
Het adres van deze woning uit 1894 is Eerste Jan van der Heijdenstraat 1391 te Amsterdam. Het pand heeft een oppervlakte van 46m² en heeft 2 kamers kamers waarvan 1 slaapkamers. De geschatte waarde van deze woning is € 410.000.

Bekijk alle woningen in Sarphatiparkbuurt

Gegevens van Tussenverdieping (appartement)

Bouwjaar
1894
Geschatte waarde
€ 410.000
Oppervlakte
46 m2
Inhoud
154 m3
Aantal kamers
2 kamers
Slaapkamers
1
Badkamers
1 badkamer en 1 apart toilet
Soort bouw
Bestaande bouw
Eigendomssituatie
Volle eigendom
Ligging
Aan park, aan rustige weg, in centrum en vrij uitzicht

Voorzieningen in de buurt

Boodschappen0,1 km
Grote supermarkt0,2 km
Cafetaria0,1 km
Restaurant0,0 km
Huisarts0,4 km
Ziekenhuis1,9 km
Kinderdagverblijf0,2 km
BSO0,3 km
Alle voorzieningen in Sarphatiparkbuurt

Binnenkijken bij Eerste Jan van der Heijdenstraat 1391 te Amsterdam

Meer meldingen in deze omgeving

Binnenkijken bij
Dinsdag 31-3-2026
Ceintuurbaan 1673, 1073EJ Amsterdam

Binnenkijken bij
Zondag 29-3-2026
Govert Flinckstraat 281H, 1073CA Amsterdam

112 melding
Zaterdag 28-3-2026 om 03:11
Eerste Sweelinckstraat, Amsterdam

Binnenkijken bij
Vrijdag 27-3-2026
Gerard Douplein 903, 1073XG Amsterdam

Nieuw bedrijf
Maart 2026
Albert Cuypstraat 2622, 1073BR Amsterdam

Nieuw bedrijf
Maart 2026
Ferdinand Bolstraat 872, 1072LD Amsterdam

Nieuw bedrijf
Maart 2026
Gerard Doustraat 1921, 1073XA Amsterdam

Binnenkijken bij
Maandag 23-3-2026
Eerste Jan van der Heijdenstraat 1593, 1072TS Amsterdam

Direct een e-mail ontvangen bij nieuwe meldingen in deze regio?

Meld je dan GRATIS aan voor de Oozo Alert service voor Sarphatiparkbuurt

Instellen

Meer nieuws in Sarphatiparkbuurt

Weten hoe eenvoudig het is om af te vallen? Zonder pillen en smeersels en zonder je in het zweet te werken!
Kijk op eenvoudig-afvallen.nl

© 2012 - 2026 OOZO.nl - info@oozo.nl - Gegevens verwijderen? | Disclaimer | Privacy statement