Woning Oudenaardeplantsoen 55 Amsterdam

Oudenaardeplantsoen 55, 1066TJ Amsterdam

Ontvang updates voor Nieuw Sloten Noordwest

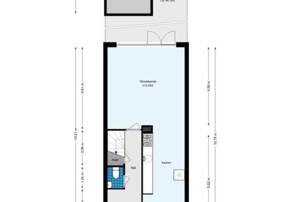
Het adres van deze woning uit 1995 is Oudenaardeplantsoen 55 te Amsterdam. Het pand heeft een oppervlakte van 111m² en een perceeloppervlakte van 120m² en heeft 5 kamers kamers waarvan 3 slaapkamers. De geschatte waarde van deze woning is € 595.000.

Bekijk alle woningen in Nieuw Sloten Noordwest

Gegevens van Eengezinswoning, tussenwoning

Bouwjaar
1995
Geschatte waarde
€ 595.000
Oppervlakte
111 m2
Inhoud
531 m3
Aantal kamers
5 kamers
Slaapkamers
3
Badkamers
1 badkamer en 1 apart toilet
Soort bouw
Bestaande bouw
Eigendomssituatie
Gemeentelijk eigendom belast met erfpacht
Ligging
Aan park, in woonwijk en vrij uitzicht
Tuin
Achtertuin en voortuin
Achtertuin
46 m² (10,20 meter diep en 4,55 meter breed)

Voorzieningen in de buurt

Boodschappen0,7 km
Grote supermarkt0,7 km
Cafetaria0,7 km
Restaurant0,6 km
Huisarts0,4 km
Ziekenhuis2,3 km
Kinderdagverblijf0,3 km
BSO0,4 km
Alle voorzieningen in Nieuw Sloten Noordwest

Binnenkijken bij Oudenaardeplantsoen 55 te Amsterdam

Meer meldingen in deze omgeving

112 melding
Donderdag 29-1-2026 om 16:31
Turnhoutplantsoen, Amsterdam

Binnenkijken bij
Zondag 25-1-2026
Wevelgemstraat 28, 1066TM Amsterdam

112 melding
Vrijdag 23-1-2026 om 10:04
Berlaarstraat, Amsterdam

Binnenkijken bij
Vrijdag 23-1-2026
Berlaarstraat 197, 1066PL Amsterdam

Binnenkijken bij
Vrijdag 23-1-2026
Berlaarstraat 193, 1066PL Amsterdam

112 melding
Donderdag 22-1-2026 om 13:01
Turnhoutplantsoen, Amsterdam

112 melding
Donderdag 22-1-2026 om 13:01
Turnhoutplantsoen, Amsterdam

112 melding
Donderdag 22-1-2026 om 12:54
Turnhoutplantsoen, Amsterdam

Direct een e-mail ontvangen bij nieuwe meldingen in deze regio?

Meld je dan GRATIS aan voor de Oozo Alert service voor Nieuw Sloten Noordwest

Instellen

Meer nieuws in Nieuw Sloten Noordwest

Weten hoe eenvoudig het is om af te vallen? Zonder pillen en smeersels en zonder je in het zweet te werken!
Kijk op eenvoudig-afvallen.nl

© 2012 - 2026 OOZO.nl - info@oozo.nl - Gegevens verwijderen? | Disclaimer | Privacy statement