Woning Kortrijk 80 Amsterdam

Kortrijk 80, 1066TC Amsterdam

Ontvang updates voor Nieuw Sloten Zuidwest

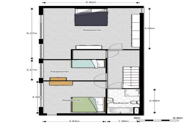
Het adres van deze woning uit 1996 is Kortrijk 80 te Amsterdam. Het pand heeft een oppervlakte van 151m² en een perceeloppervlakte van 199m² en heeft 4 kamers kamers waarvan 3 slaapkamers. De geschatte waarde van deze woning is € 598.000.

Bekijk alle woningen in Nieuw Sloten Zuidwest

Gegevens van Herenhuis, halfvrijstaande woning

Bouwjaar
1996
Geschatte waarde
€ 598.000
Oppervlakte
151 m2
Inhoud
549 m3
Aantal kamers
4 kamers
Slaapkamers
3
Badkamers
1 badkamer en 1 apart toilet
Soort bouw
Bestaande bouw
Eigendomssituatie
Gemeentelijke erfpacht (einddatum erfpacht: 30-11-2043)
Ligging
Aan water, aan park, aan rustige weg, in woonwijk en beschutte ligging
Tuin
Voortuin

Voorzieningen in de buurt

Boodschappen0,5 km
Grote supermarkt0,6 km
Cafetaria0,5 km
Restaurant0,4 km
Huisarts0,7 km
Ziekenhuis2,3 km
Kinderdagverblijf0,5 km
BSO0,4 km
Alle voorzieningen in Nieuw Sloten Zuidwest

Binnenkijken bij Kortrijk 80 te Amsterdam

Meer meldingen in deze omgeving

Nieuw bedrijf
November 2025
Knokkestraat 86, 1066WK Amsterdam

Nieuw bedrijf
November 2025
Knokkestraat 86, 1066WK Amsterdam

Nieuw bedrijf
November 2025
Beverenstraat 26, 1066WD Amsterdam

Nieuw bedrijf
November 2025
Schaarbeekstraat 79, 1066WH Amsterdam

Onroerend goed
Dinsdag 11-11-2025
Laan van Vlaanderen 325, 1066WB Amsterdam

Binnenkijken bij
Dinsdag 11-11-2025
Schaarbeekstraat 44, 1066WH Amsterdam

Binnenkijken bij
Dinsdag 11-11-2025
Kortrijk 70, 1066TC Amsterdam

Nieuw bedrijf
November 2025
Liedekerkeplantsoen 20, 1066WP Amsterdam

Direct een e-mail ontvangen bij nieuwe meldingen in deze regio?

Meld je dan GRATIS aan voor de Oozo Alert service voor Nieuw Sloten Zuidwest

Instellen

Meer nieuws in Nieuw Sloten Zuidwest

Weten hoe eenvoudig het is om af te vallen? Zonder pillen en smeersels en zonder je in het zweet te werken!
Kijk op eenvoudig-afvallen.nl

© 2012 - 2025 OOZO.nl - info@oozo.nl - Gegevens verwijderen? | Disclaimer | Privacy statement