Woning Zennehof 4 Amsterdam

Zennehof 4, 1066WT Amsterdam

Ontvang updates voor Nieuw Sloten Zuidwest

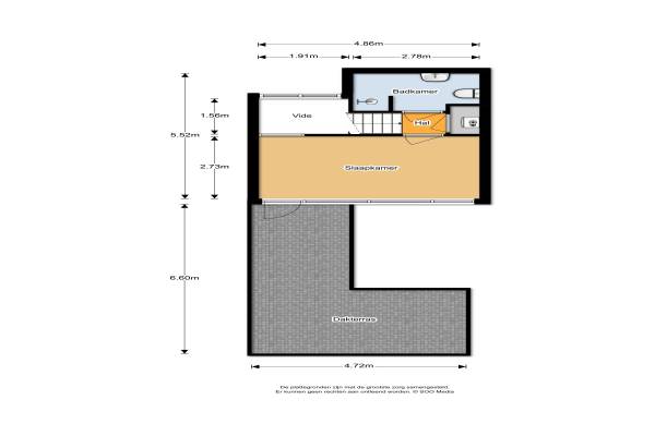
Het adres van deze woning uit 1996 is Zennehof 4 te Amsterdam. Het pand heeft een oppervlakte van 90m² en een perceeloppervlakte van 89m² en heeft 2 kamers kamers waarvan 1 slaapkamers. De geschatte waarde van deze woning is € 325.000.

Bekijk alle woningen in Nieuw Sloten Zuidwest

Gegevens van Eengezinswoning, tussenwoning (patiowoning)

Bouwjaar
1996
Geschatte waarde
€ 325.000
Oppervlakte
90 m2
Inhoud
315 m3
Aantal kamers
2 kamers
Slaapkamers
1
Badkamers
1 badkamer en 1 apart toilet
Soort bouw
Bestaande bouw
Eigendomssituatie
Gemeentelijk eigendom belast met erfpacht (einddatum erfpacht: 31-08-2044)
Ligging
Aan rustige weg en in woonwijk
Tuin
Patio/atrium

Voorzieningen in de buurt

Boodschappen0,5 km
Grote supermarkt0,6 km
Cafetaria0,5 km
Restaurant0,4 km
Huisarts0,7 km
Ziekenhuis2,3 km
Kinderdagverblijf0,5 km
BSO0,4 km
Alle voorzieningen in Nieuw Sloten Zuidwest

Binnenkijken bij Zennehof 4 te Amsterdam

Meer meldingen in deze omgeving

112 melding
Dinsdag 17-3-2026 om 13:46
Beverenstraat, 1066WD Amsterdam

Binnenkijken bij
Zaterdag 14-3-2026
Knokkestraat 65, 1066WK Amsterdam

112 melding
Donderdag 12-3-2026 om 14:27
Knokkestraat, 1066WK Amsterdam

112 melding
Dinsdag 10-3-2026 om 02:21
Willebroekstraat, 1066WE Amsterdam

112 melding
Dinsdag 10-3-2026 om 02:20
Willebroekstraat, 1066WE Amsterdam

112 melding
Dinsdag 10-3-2026 om 01:54
Willebroekstraat, 1066WE Amsterdam

Binnenkijken bij
Maandag 9-3-2026
Grimbergenstraat 32, 1066JT Amsterdam

112 melding
Zondag 8-3-2026 om 20:17
Kortrijk, Amsterdam

Direct een e-mail ontvangen bij nieuwe meldingen in deze regio?

Meld je dan GRATIS aan voor de Oozo Alert service voor Nieuw Sloten Zuidwest

Instellen

Meer nieuws in Nieuw Sloten Zuidwest

Weten hoe eenvoudig het is om af te vallen? Zonder pillen en smeersels en zonder je in het zweet te werken!
Kijk op eenvoudig-afvallen.nl

© 2012 - 2026 OOZO.nl - info@oozo.nl - Gegevens verwijderen? | Disclaimer | Privacy statement