Woning De Lierhof 42+ Pp AMSTERDAM

De Lierhof 42+ Pp, 1059WE AMSTERDAM

Ontvang updates voor Delflandpleinbuurt Oost

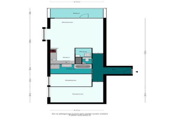
Het adres van deze woning uit 2000 is De Lierhof 42+ Pp te AMSTERDAM. Het pand heeft een oppervlakte van 87m² en heeft 3 kamers kamers waarvan 2 slaapkamers. De geschatte waarde van deze woning is € 625.000.

Bekijk alle woningen in Delflandpleinbuurt Oost

Gegevens van Appartement

Bouwjaar
2000
Geschatte waarde
€ 625.000
Oppervlakte
87 m2
Inhoud
264 m3
Aantal kamers
3 kamers
Slaapkamers
2
Tuin
Balkon aanwezig

Voorzieningen in de buurt

Boodschappen0,5 km
Grote supermarkt0,4 km
Cafetaria0,5 km
Restaurant0,4 km
Huisarts0,5 km
Ziekenhuis2,3 km
Kinderdagverblijf0,4 km
BSO0,4 km
Alle voorzieningen in Delflandpleinbuurt Oost

Binnenkijken bij De Lierhof 42+ Pp te AMSTERDAM

Meer meldingen in deze omgeving

112 melding
Donderdag 29-1-2026 om 13:10
Poeldijkstraat, Amsterdam

112 melding
Woensdag 28-1-2026 om 13:27
Hoek van Hollandstraat, Amsterdam

112 melding
Donderdag 22-1-2026 om 19:55
Poeldijkstraat, Amsterdam

112 melding
Donderdag 22-1-2026 om 14:34
Honselersdijkstraat, Amsterdam

112 melding
Woensdag 21-1-2026 om 13:35
Naaldwijkstraat, Amsterdam

112 melding
Woensdag 21-1-2026 om 08:52
Naaldwijkstraat, Amsterdam

Binnenkijken bij
Woensdag 21-1-2026
Poeldijkstraat 381, 1059VL Amsterdam

Nieuw bedrijf
Januari 2026
Poeldijkstraat 79, 1059VH Amsterdam

Direct een e-mail ontvangen bij nieuwe meldingen in deze regio?

Meld je dan GRATIS aan voor de Oozo Alert service voor Delflandpleinbuurt Oost

Instellen

Meer nieuws in Delflandpleinbuurt Oost

Weten hoe eenvoudig het is om af te vallen? Zonder pillen en smeersels en zonder je in het zweet te werken!
Kijk op eenvoudig-afvallen.nl

© 2012 - 2026 OOZO.nl - info@oozo.nl - Gegevens verwijderen? | Disclaimer | Privacy statement