Woning Jan Lievensstraat 58II Amsterdam

Jan Lievensstraat 58II, 1074TS Amsterdam

Ontvang updates voor Diamantbuurt

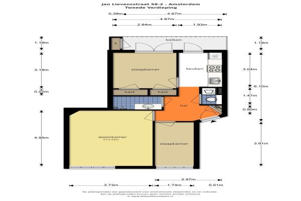
Het adres van deze woning is Jan Lievensstraat 58II te Amsterdam. Het pand heeft een oppervlakte van 54m² en heeft 3 kamers kamers waarvan 2 slaapkamers. De geschatte waarde van deze woning is € 299.000.

Bekijk alle woningen in Diamantbuurt

Gegevens van Bovenwoning (appartement)

Geschatte waarde
€ 299.000
Oppervlakte
54 m2
Inhoud
170 m3
Aantal kamers
3 kamers
Slaapkamers
2
Soort bouw
Bestaande bouw
Eigendomssituatie
Gemeentelijke erfpacht (einddatum erfpacht: 01-06-2046)
Ligging
In woonwijk

Voorzieningen in de buurt

Boodschappen0,3 km
Grote supermarkt0,3 km
Cafetaria0,3 km
Restaurant0,2 km
Huisarts0,5 km
Ziekenhuis1,7 km
Kinderdagverblijf0,2 km
BSO0,2 km
Alle voorzieningen in Diamantbuurt

Binnenkijken bij Jan Lievensstraat 58II te Amsterdam

Meer meldingen in deze omgeving

Nieuw bedrijf
December 2025
Van Woustraat 1732, 1074AL Amsterdam

Nieuw bedrijf
December 2025
Jozef Israëlskade 410, 1074SR Amsterdam

Nieuw bedrijf
December 2025
Tolstraat 182, 1074VM Amsterdam

Nieuw bedrijf
December 2025
Amsteldijk 79, 1074JA Amsterdam

112 melding
Donderdag 11-12-2025 om 01:15
Smaragdstraat, Amsterdam

Nieuw bedrijf
December 2025
Jozef Israëlskade 419, 1074ST Amsterdam

Binnenkijken bij
Zondag 7-12-2025
Van Woustraat 1893, 1074AM Amsterdam

Onroerend goed
Vrijdag 5-12-2025
Tolstraat 130- 134, 1074VL Amsterdam

Direct een e-mail ontvangen bij nieuwe meldingen in deze regio?

Meld je dan GRATIS aan voor de Oozo Alert service voor Diamantbuurt

Instellen

Meer nieuws in Diamantbuurt

Weten hoe eenvoudig het is om af te vallen? Zonder pillen en smeersels en zonder je in het zweet te werken!
Kijk op eenvoudig-afvallen.nl

© 2012 - 2025 OOZO.nl - info@oozo.nl - Gegevens verwijderen? | Disclaimer | Privacy statement