Woning Katsbergpad 16 Arnhem

Katsbergpad 16, 6845EP Arnhem

Ontvang updates voor De Laar-Oost

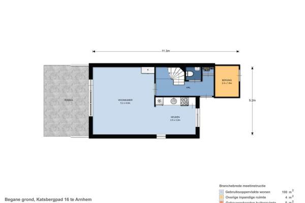
Het adres van deze woning is Katsbergpad 16 te Arnhem. Het pand heeft een oppervlakte van 100m² en een perceeloppervlakte van 194m² en heeft 4 kamers kamers waarvan 3 slaapkamers. De geschatte waarde van deze woning is € 179.500.

Bekijk alle woningen in De Laar-Oost

Gegevens van

Geschatte waarde
€ 179.500
Oppervlakte
100 m² woonopp. m2
Aantal kamers
4 kamers

Voorzieningen in de buurt

Boodschappen0,8 km
Grote supermarkt0,8 km
Cafetaria0,8 km
Restaurant0,8 km
Huisarts1,0 km
Ziekenhuis1,6 km
Kinderdagverblijf0,4 km
BSO0,6 km
Alle voorzieningen in De Laar-Oost

Binnenkijken bij Katsbergpad 16 te Arnhem

Meer meldingen in deze omgeving

Nieuw bedrijf
November 2025
Meliskerkestraat 52, 6845AW Arnhem

Nieuw bedrijf
November 2025
Meliskerkestraat 37, 6845AV Arnhem

Nieuw bedrijf
November 2025
Bruinissestraat 74, 6845BC Arnhem

112 melding
Maandag 17-11-2025 om 17:42
Venlosingel, 6845JW Arnhem

112 melding
Maandag 17-11-2025 om 17:42
Venlosingel, 6845JW Arnhem

112 melding
Maandag 17-11-2025 om 17:05
Altweertstraat, 6845ER Arnhem

112 melding
Maandag 17-11-2025 om 16:05
Baakhovenstraat, Arnhem

112 melding
Maandag 17-11-2025 om 15:26
Wijnandsradestraat, 6845HR Arnhem

Direct een e-mail ontvangen bij nieuwe meldingen in deze regio?

Meld je dan GRATIS aan voor de Oozo Alert service voor De Laar-Oost

Instellen

Meer nieuws in De Laar-Oost

Weten hoe eenvoudig het is om af te vallen? Zonder pillen en smeersels en zonder je in het zweet te werken!
Kijk op eenvoudig-afvallen.nl

© 2012 - 2025 OOZO.nl - info@oozo.nl - Gegevens verwijderen? | Disclaimer | Privacy statement