Woning Venlosingel 64 Arnhem

Venlosingel 64, 6845JB Arnhem

Ontvang updates voor De Laar Oost

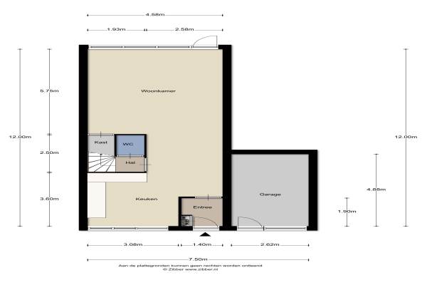
Het adres van deze woning uit 1982 is Venlosingel 64 te Arnhem. Het pand heeft een oppervlakte van 125m² en een perceeloppervlakte van 200m² en heeft 5 kamers kamers waarvan 4 slaapkamers. De geschatte waarde van deze woning is € 225.000.

Bekijk alle woningen in De Laar Oost

Gegevens van Eengezinswoning, verspringend

Bouwjaar
1982
Geschatte waarde
€ 225.000
Oppervlakte
125 m2
Inhoud
450 m3
Aantal kamers
5 kamers
Slaapkamers
4
Soort bouw
Bestaande bouw
Ligging
In woonwijk

Voorzieningen in de buurt

Boodschappen0,8 km
Grote supermarkt0,8 km
Cafetaria0,8 km
Restaurant0,8 km
Huisarts1,0 km
Ziekenhuis1,6 km
Kinderdagverblijf0,4 km
BSO0,6 km
Alle voorzieningen in De Laar Oost

Binnenkijken bij Venlosingel 64 te Arnhem

Meer meldingen in deze omgeving

Binnenkijken bij
Woensdag 19-11-2025
Venlosingel 167, 6845JP Arnhem

Nieuw bedrijf
November 2025
Meliskerkestraat 52, 6845AW Arnhem

Nieuw bedrijf
November 2025
Meliskerkestraat 37, 6845AV Arnhem

Nieuw bedrijf
November 2025
Bruinissestraat 74, 6845BC Arnhem

112 melding
Dinsdag 18-11-2025 om 17:13
Aagtekerkesingel, 6845AL Arnhem

112 melding
Dinsdag 18-11-2025 om 17:02
Wijnandsradestraat, 6845HR Arnhem

112 melding
Dinsdag 18-11-2025 om 14:25
Buggenumstraat, Arnhem

112 melding
Dinsdag 18-11-2025 om 13:16
Tongerlostraat, 6845EV Arnhem

Direct een e-mail ontvangen bij nieuwe meldingen in deze regio?

Meld je dan GRATIS aan voor de Oozo Alert service voor De Laar Oost

Instellen

Meer nieuws in De Laar Oost

Weten hoe eenvoudig het is om af te vallen? Zonder pillen en smeersels en zonder je in het zweet te werken!
Kijk op eenvoudig-afvallen.nl

© 2012 - 2025 OOZO.nl - info@oozo.nl - Gegevens verwijderen? | Disclaimer | Privacy statement