Woning Wieldrechtpad 7 Arnhem

Wieldrechtpad 7, 6843MV Arnhem

Ontvang updates voor Elderveld Zuid

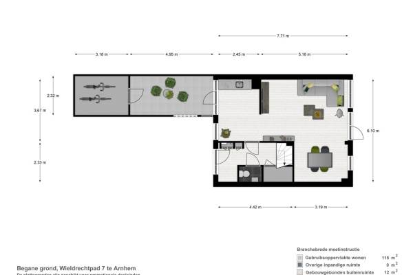
Het adres van deze woning uit 1973 is Wieldrechtpad 7 te Arnhem. Het pand heeft een oppervlakte van 115m² en een perceeloppervlakte van 172m² en heeft 6 kamers kamers waarvan 5 slaapkamers. De geschatte waarde van deze woning is € 275.000.

Bekijk alle woningen in Elderveld Zuid

Gegevens van Eengezinswoning, tussenwoning

Bouwjaar
1973
Geschatte waarde
€ 275.000
Oppervlakte
115 m2
Inhoud
387 m3
Aantal kamers
6 kamers
Slaapkamers
5
Badkamers
1 badkamer en 1 apart toilet
Soort bouw
Bestaande bouw
Eigendomssituatie
Volle eigendom
Ligging
Aan park, aan rustige weg, beschutte ligging en in woonwijk
Tuin
Achtertuin
Achtertuin
63 m² (10 meter diep en 6,25 meter breed)

Voorzieningen in de buurt

Boodschappen0,6 km
Grote supermarkt0,6 km
Cafetaria0,6 km
Restaurant0,6 km
Huisarts0,6 km
Ziekenhuis2,5 km
Kinderdagverblijf0,4 km
BSO0,7 km
Alle voorzieningen in Elderveld Zuid

Binnenkijken bij Wieldrechtpad 7 te Arnhem

Meer meldingen in deze omgeving

112 melding
Donderdag 15-1-2026 om 08:11
Arkelplantsoen, 6843DV Arnhem

112 melding
Woensdag 14-1-2026 om 17:05
Wassenaarweg, 6843NM Arnhem

112 melding
Woensdag 14-1-2026 om 12:29
Wassenaarweg, 6843NW Arnhem (Burgemeester Matsersingel)

112 melding
Woensdag 14-1-2026 om 11:08
Kinderdijkpad, Arnhem

112 melding
Woensdag 14-1-2026 om 09:24
Ameideplantsoen, 6843DS Arnhem

112 melding
Woensdag 14-1-2026 om 09:24
Ameideplantsoen, 6843DS Arnhem

112 melding
Dinsdag 13-1-2026 om 17:09
Kinderdijkpad, Arnhem

112 melding
Dinsdag 13-1-2026 om 13:43
Zwammerdampad, 6843LT Arnhem

Direct een e-mail ontvangen bij nieuwe meldingen in deze regio?

Meld je dan GRATIS aan voor de Oozo Alert service voor Elderveld Zuid

Instellen

Meer nieuws in Elderveld Zuid

Weten hoe eenvoudig het is om af te vallen? Zonder pillen en smeersels en zonder je in het zweet te werken!
Kijk op eenvoudig-afvallen.nl

© 2012 - 2026 OOZO.nl - info@oozo.nl - Gegevens verwijderen? | Disclaimer | Privacy statement