Woning Van Huevenstraat 7 Arnhem

Van Huevenstraat 7, 6824ML Arnhem

Ontvang updates voor Paasberg

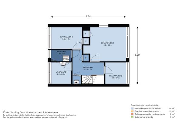
Het adres van deze woning uit 1960 is Van Huevenstraat 7 te Arnhem. Het pand heeft een oppervlakte van 102m² en een perceeloppervlakte van 176m² en heeft 6 kamers kamers waarvan 3 slaapkamers. De geschatte waarde van deze woning is € 175.000.

Bekijk alle woningen in Paasberg

Gegevens van Eengezinswoning, geschakelde 2-onder-1-kapwoning

Bouwjaar
1960
Geschatte waarde
€ 175.000
Oppervlakte
102 m2
Inhoud
300 m3
Aantal kamers
6 kamers
Slaapkamers
3
Badkamers
2 aparte toiletten
Soort bouw
Bestaande bouw
Eigendomssituatie
Volle eigendom
Ligging
Aan rustige weg, in woonwijk en in bosrijke omgeving
Tuin
Achtertuin en voortuin

Voorzieningen in de buurt

Boodschappen0,4 km
Grote supermarkt0,9 km
Cafetaria0,9 km
Restaurant1,4 km
Huisarts0,7 km
Ziekenhuis3,3 km
Kinderdagverblijf0,4 km
BSO0,6 km
Alle voorzieningen in Paasberg

Binnenkijken bij Van Huevenstraat 7 te Arnhem

Meer meldingen in deze omgeving

112 melding
Donderdag 27-11-2025 om 08:16
Weg naar 't Lange Water, 6824MS Arnhem

112 melding
Woensdag 26-11-2025 om 11:03
De Genestetstraat, 6824NR Arnhem

112 melding
Dinsdag 25-11-2025 om 14:04
Vondellaan, 6824NB Arnhem

112 melding
Dinsdag 25-11-2025 om 13:30
De Genestetstraat, 6824NR Arnhem

112 melding
Dinsdag 25-11-2025 om 13:11
De Genestetstraat, 6824NR Arnhem

112 melding
Maandag 24-11-2025 om 15:52
P.C. Hooftstraat, 6824PB Arnhem

112 melding
Zaterdag 22-11-2025 om 16:28
Da Costastraat, 6824NT Arnhem

112 melding
Zaterdag 22-11-2025 om 16:28
Da Costastraat, 6824NT Arnhem

Direct een e-mail ontvangen bij nieuwe meldingen in deze regio?

Meld je dan GRATIS aan voor de Oozo Alert service voor Paasberg

Instellen

Meer nieuws in Paasberg

Weten hoe eenvoudig het is om af te vallen? Zonder pillen en smeersels en zonder je in het zweet te werken!
Kijk op eenvoudig-afvallen.nl

© 2012 - 2025 OOZO.nl - info@oozo.nl - Gegevens verwijderen? | Disclaimer | Privacy statement