Woning Deelheugte 108 Assen

Deelheugte 108, 9403HG Assen

Ontvang updates voor De Heugten

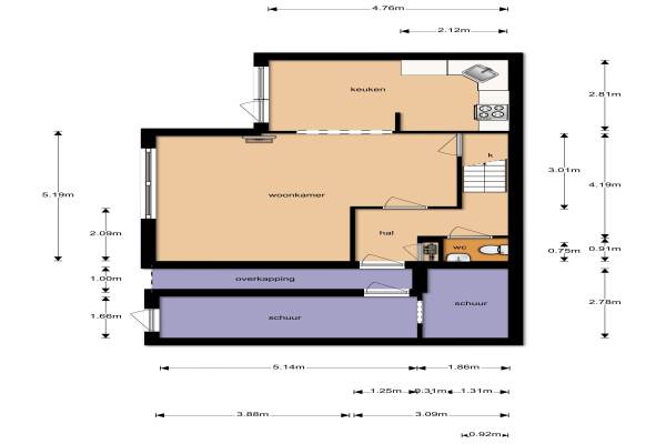
Het adres van deze woning uit 1987 is Deelheugte 108 te Assen. Het pand heeft een oppervlakte van 105m² en een perceeloppervlakte van 164m² en heeft 5 kamers kamers waarvan 4 slaapkamers. De geschatte waarde van deze woning is € 180.000.

Bekijk alle woningen in De Heugten

Gegevens van Eengezinswoning, hoekwoning (kwadrant woning)

Bouwjaar
1987
Geschatte waarde
€ 180.000
Oppervlakte
105 m2
Inhoud
455 m3
Aantal kamers
5 kamers
Slaapkamers
4
Badkamers
1 badkamer en 1 apart toilet
Soort bouw
Bestaande bouw
Eigendomssituatie
Volle eigendom
Ligging
In woonwijk
Tuin
Voortuin

Voorzieningen in de buurt

Boodschappen0,8 km
Grote supermarkt0,7 km
Cafetaria0,8 km
Restaurant0,8 km
Huisarts0,7 km
Ziekenhuis1,7 km
Kinderdagverblijf0,4 km
BSO0,4 km
Alle voorzieningen in De Heugten

Binnenkijken bij Deelheugte 108 te Assen

Meer meldingen in deze omgeving

Nieuw bedrijf
Oktober 2025
Deelheugte 113, 9403HK Assen

Binnenkijken bij
Zaterdag 27-9-2025
Beunheugte 34, 9403HP Assen

112 melding
Woensdag 3-9-2025 om 18:14
Kiepheugte, Assen

112 melding
Woensdag 3-9-2025 om 18:14
Kiepheugte, Assen

112 melding
Zaterdag 21-6-2025 om 03:55
Beunheugte, Assen

Binnenkijken bij
Vrijdag 6-6-2025
Welheugte 17, 9403GP Assen

Faillissement
Woensdag 4-6-2025
Baanderheugte 44, 9403HL Assen

Binnenkijken bij
Maandag 12-5-2025
Zichtheugte 14, 9403GD Assen

Direct een e-mail ontvangen bij nieuwe meldingen in deze regio?

Meld je dan GRATIS aan voor de Oozo Alert service voor De Heugten

Instellen

Meer nieuws in De Heugten

Weten hoe eenvoudig het is om af te vallen? Zonder pillen en smeersels en zonder je in het zweet te werken!
Kijk op eenvoudig-afvallen.nl

© 2012 - 2025 OOZO.nl - info@oozo.nl - Gegevens verwijderen? | Disclaimer | Privacy statement