Woning Wolvenveen 61 Assen

Wolvenveen 61, 9407HM Assen

Ontvang updates voor De Venen/De Wallen

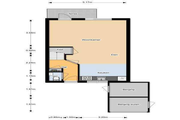
Het adres van deze woning uit 1985 is Wolvenveen 61 te Assen. Het pand heeft een oppervlakte van 101m² en een perceeloppervlakte van 128m² en heeft 5 kamers kamers waarvan 4 slaapkamers. De geschatte waarde van deze woning is € 145.000.

Bekijk alle woningen in De Venen/De Wallen

Gegevens van Eengezinswoning, tussenwoning

Bouwjaar
1985
Geschatte waarde
€ 145.000
Oppervlakte
101 m2
Inhoud
330 m3
Aantal kamers
5 kamers
Slaapkamers
4
Badkamers
1 badkamer en 1 apart toilet
Soort bouw
Bestaande bouw
Eigendomssituatie
Volle eigendom
Ligging
Aan rustige weg en in woonwijk
Tuin
Achtertuin en voortuin
Achtertuin
33 m² (6,5m diep en 5m breed)

Voorzieningen in de buurt

Boodschappen0,6 km
Grote supermarkt0,6 km
Cafetaria0,6 km
Restaurant0,6 km
Huisarts0,7 km
Ziekenhuis2,0 km
Kinderdagverblijf0,7 km
BSO0,7 km
Alle voorzieningen in De Venen/De Wallen

Binnenkijken bij Wolvenveen 61 te Assen

Meer meldingen in deze omgeving

Nieuw bedrijf
Maart 2026
Ekkelwal 1, 9407AK Assen

Binnenkijken bij
Zaterdag 21-2-2026
Schanswal 26, 9407AB Assen

Binnenkijken bij
Woensdag 11-2-2026
Wolvenveen 64, 9407HL Assen

Binnenkijken bij
Woensdag 21-1-2026
Wolvenveen 53, 9407HM Assen

Binnenkijken bij
Vrijdag 16-1-2026
Wolvenveen 16, 9407HJ Assen

112 melding
Donderdag 15-1-2026 om 15:49
Veenwalweg, 9407AM Assen

112 melding
Donderdag 15-1-2026 om 15:49
Veenwalweg, 9407AM Assen

112 melding
Zondag 21-12-2025 om 19:04
Wolvenveen, Assen

Direct een e-mail ontvangen bij nieuwe meldingen in deze regio?

Meld je dan GRATIS aan voor de Oozo Alert service voor De Venen/De Wallen

Instellen

Meer nieuws in De Venen/De Wallen

Weten hoe eenvoudig het is om af te vallen? Zonder pillen en smeersels en zonder je in het zweet te werken!
Kijk op eenvoudig-afvallen.nl

© 2012 - 2026 OOZO.nl - info@oozo.nl - Gegevens verwijderen? | Disclaimer | Privacy statement