Woning Sirius 1 Puttershoek

Sirius 1, 3297VJ Puttershoek

Ontvang updates voor Bebouwde Kom Plan Dorp

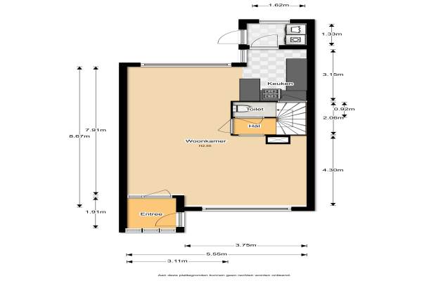
Het adres van deze woning uit 1973 is Sirius 1 te Puttershoek. Het pand heeft een oppervlakte van 128m² en een perceeloppervlakte van 136m² en heeft 5 kamers kamers waarvan 4 slaapkamers. De geschatte waarde van deze woning is € 215.000.

Bekijk alle woningen in Bebouwde Kom Plan Dorp

Gegevens van Eengezinswoning, hoekwoning

Bouwjaar
1973
Geschatte waarde
€ 215.000
Oppervlakte
128 m2
Inhoud
380 m3
Aantal kamers
5 kamers
Slaapkamers
4
Badkamers
1 badkamer en 1 apart toilet
Soort bouw
Bestaande bouw
Eigendomssituatie
Volle eigendom
Ligging
In woonwijk
Tuin
Achtertuin en voortuin
Achtertuin
50 m² (9m diep en 5,5m breed)

Voorzieningen in de buurt

Binnenkijken bij Sirius 1 te Puttershoek

Meer meldingen in deze omgeving

112 melding
Donderdag 26-2-2026 om 14:27
Eikenlaan, 3297XB Puttershoek

112 melding
Donderdag 26-2-2026 om 12:43
Oranjelaan Oostzijde, 3297CS Puttershoek

112 melding
Donderdag 26-2-2026 om 11:37
Tjasker, 3297TR Puttershoek

112 melding
Donderdag 26-2-2026 om 11:37
Tjasker, 3297TR Puttershoek

112 melding
Donderdag 26-2-2026 om 09:03
Oranjelaan Westzijde, 3297CT Puttershoek

112 melding
Donderdag 26-2-2026 om 08:37
Margrietstraat, 3297CG Puttershoek

112 melding
Donderdag 26-2-2026 om 08:37
Margrietstraat, 3297CG Puttershoek

112 melding
Donderdag 26-2-2026 om 08:37
Margrietstraat, 3297CG Puttershoek

Direct een e-mail ontvangen bij nieuwe meldingen in deze regio?

Meld je dan GRATIS aan voor de Oozo Alert service voor Bebouwde Kom Plan Dorp

Instellen

Meer nieuws in Bebouwde Kom Plan Dorp

Weten hoe eenvoudig het is om af te vallen? Zonder pillen en smeersels en zonder je in het zweet te werken!
Kijk op eenvoudig-afvallen.nl

© 2012 - 2026 OOZO.nl - info@oozo.nl - Gegevens verwijderen? | Disclaimer | Privacy statement