Woning Paradijslaan 43 Breda

Paradijslaan 43, 4822PD Breda

Ontvang updates voor Muizenberg

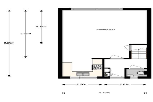
Het adres van deze woning uit 1988 is Paradijslaan 43 te Breda. Het pand heeft een oppervlakte van 105m² en een perceeloppervlakte van 177m² en heeft 5 kamers kamers waarvan 4 slaapkamers. De geschatte waarde van deze woning is € 225.000.

Bekijk alle woningen in Muizenberg

Gegevens van Eengezinswoning, tussenwoning

Bouwjaar
1988
Geschatte waarde
€ 225.000
Oppervlakte
105 m2
Inhoud
310 m3
Aantal kamers
5 kamers
Slaapkamers
4
Badkamers
1 badkamer en 1 apart toilet
Soort bouw
Bestaande bouw
Eigendomssituatie
Volle eigendom
Ligging
Aan rustige weg en in woonwijk
Tuin
Achtertuin en voortuin
Achtertuin
110 m² (20m diep en 5,5m breed)

Voorzieningen in de buurt

Boodschappen0,6 km
Grote supermarkt0,7 km
Cafetaria0,7 km
Restaurant0,6 km
Huisarts1,0 km
Ziekenhuis6,7 km
Kinderdagverblijf0,4 km
BSO0,7 km
Alle voorzieningen in Muizenberg

Binnenkijken bij Paradijslaan 43 te Breda

Meer meldingen in deze omgeving

Nieuw bedrijf
November 2025
Klarenberg 50, 4822SH Breda

Nieuw bedrijf
November 2025
Zinkstraat 24, 4823AD Breda

Nieuw bedrijf
November 2025
Ganzerik 18, 4822RK Breda

Nieuw bedrijf
November 2025
Zinkstraat 24, 4823AD Breda

Faillissement
Woensdag 26-11-2025
Zinkstraat 24, 4823AD Breda

Binnenkijken bij
Vrijdag 21-11-2025
Paradijslaan 67, 4822PD Breda

Faillissement
Maandag 17-11-2025
Zinkstraat 24UNIT 9734, 4823AD BREDA

Faillissement
Maandag 17-11-2025
Zinkstraat 24, 4823AD Breda

Direct een e-mail ontvangen bij nieuwe meldingen in deze regio?

Meld je dan GRATIS aan voor de Oozo Alert service voor Muizenberg

Instellen

Meer nieuws in Muizenberg

Weten hoe eenvoudig het is om af te vallen? Zonder pillen en smeersels en zonder je in het zweet te werken!
Kijk op eenvoudig-afvallen.nl

© 2012 - 2025 OOZO.nl - info@oozo.nl - Gegevens verwijderen? | Disclaimer | Privacy statement